Каждый человек хочет, чтобы в его доме, квартире была установлена не только качественная, но и экономичная система отопления. Многие выбирают воздушное отопление загородного дома, потому что именно оно подходит под эти критерии.
Устройство воздушной системы
Состав воздушного отопления следующий:
- Нагревательный элемент (тепловой генератор, калорифер; в помещениях промышленного типа – тепловая пушка) – подогревает воздух.
- Воздуховоды, соединенные в сеть – для перемещения воздуха в помещение.
- Вентиляторы – распределяют теплый воздух.
Немало людей, строящих собственный дом, проектируют его вместе с системой отопления. При этом они экономят на расходах по дальнейшему привлечению специалистов для монтажа системы.


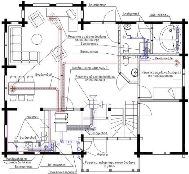
Схема воздушного отопления дома
Понятное дело, что у каждой отопительной системы есть свои достоинства, но и без изъянов не обойтись.
Плюсы и минусы воздушной системы
К достоинствам воздушного обогрева можно отнести следующие:
- КПД составляет от 90%.
- Трубы не надо ни покупать, ни устанавливать.
- Можно дополнительно присоединить кондиционер, что позволяет поддерживать оптимальную температуру.
- Эффективность очень высока, и прибор может за короткий срок обогреть большую площадь.
Изъяны у системы такие:
- Нужно продумать и указать ее на проекте дома, еще при начале строительства.
- Сначала – воздуховоды, а потом уже отделочные работы.
- Систематически придется вызывать работника сервиса либо самому проводить обслуживание.
- Усовершенствовать воздушную систему пока не представляется возможным.
- Система работает от электричества. Могут быть аварии и перебои, поэтому стоит купить генератор или другой подобный прибор.
Канальная система отопления
Канальная система пользуется наибольшим спросом. В канальную схему отопления входят такие элементы, как:
- Печь – для топлива.
- Фильтр.
- Труба для оттока воздуха.
- Система труб для попадания воздуха к печке, вывода его в нагретом состоянии в помещение.
- Дымоход.


Схема прокладки воздушной системы отопления
Воздушное отопление загородного дома и гаража канальной системы снабжено обогревателем, работающим на газе либо жидкости. Автоматическая система следит за работой элементов и поддерживает оптимальный температурный режим. Однако необходимо проверить теплоизоляцию, иначе тепло «улетучится». Если таковая кажется некачественной, следует вызвать мастеров для ее проверки и установки новой. Тогда система позволит сэкономить на расходах, а запускать ее можно 4 раза в день.


Стационарный теплогенератор для воздушного отопления
Проект воздушного отопления
К сожалению, самостоятельно спроектировать воздушную отопительную систему невозможно. Во-первых, многое зависит от теплопотери помещения, которая в различных помещениях может существенно различаться. Кроме этого, высчитывают мощность и вид нагревательного элемента, насколько система аэродинамична, сколько теплого воздуха необходимо, каково у трубопровода наилучшее сечение.


Вариант проекта воздушного отопления дома
Нельзя ошибаться расчетах отопления, потому что они влияют на функционирование системы.
Как следствие, появятся сквозняки, шум, нагревание будет слабое либо же слишком сильное. Если произойдет перегрев, то система начнет барахлить, и, в конце концов, сломается совсем. Поэтому лучше пойти к специалисту, который создаст проект системы, учитывая все пожелания заказчика, и подскажет, какие приборы лучше купить. Быть может, даже посоветует проверенный магазин.
В настоящее время в воздушном отоплении загородного дома все чаще применяют такой нагревательный элемент, как солнечный коллектор. Но его имеет смысл ставить только в теплых регионах, где много солнца. При этом монтаж коллектора осуществляется на крыше либо на поверхности, стоящей отдельно.
Установка воздушного отопления
Следует обратиться на любое предприятие, которое производит всевозможное оборудование, специально предназначенное для систем вентиляции, и заказать у них следующее:
- Воздуховоды.
- Врезки.
- Дроссельные заслонки.
В магазине нужно купить:
- Саморезы.
- Монтажную ленту.
- Шумоглушители.
- Материал – фольгированный, термоизоляционный.
- Трубы.
- Хомуты.
При помощи такого набора даже начинающий справится с монтажом воздушной системы.