

Напольный котел Протерм Медведь KLOM, самая функциональная и практичная модель из всей серии Медведь. Данные модели идут с электронным дисплеем, на котором отображаются неисправности и модулирующей горелкой, которая позволяет максимально экономить топливо.
В данной статье описаны котлы Протерм Медведь KLOM R17 — начали они выпуск в 2015 году.
Плюсом к этому, идет наличие шины eBus для обмена данными с устройствами, которые работают по этому протоколу. Так же, заместо пьезорозжига, в котла Медведь KLOM установлен электрический розжиг.
Конструктивные особенности котла Медвель KLOM R17
Обновленные компоненты котла медведь KLOM R17


Нагрев ГВС
Нагрев горячей воды для бытовых нужд производится в отдельно стоящем бойлере косвенного нагрева. Для подключения необходим NTC датчик (артикул 0010006491).
Комфорт
Для поддержания комфортной температуры в помещении в зависимости от погоды за окном, необходимо докупить датчик наружной температуры (артикул 0020040797).
Технические характеристики котла Медведь KLOM R17
| Модельный ряд | 20 KLOM | 30 KLOM | 40 KLOM | 50 KLOM |
|---|---|---|---|---|
| Артикул | 0010005724 | 0010005725 | 0010005726 | 0010005727 |
| Вариант размезещения | Напольный | |||
| Электронезависимый | Нет | |||
| Подходит для открытых систем отопления | Нет | |||
| Подходит для закрытых систем отопления | Да | |||
| Кол-во контуров | Одноконтурный | |||
| Тип топлива | Газ | |||
| Работа на природном газе | G20 | |||
| Работа на сжиженном газе | G31 — пропан | |||
| Тип горелки | Модулирующая, инжекторная | |||
| Режимы отопления | Зима-Лето | |||
ТЕПЛООБМЕННИК МЕДВЕДЬ KLOM |
||||
| Материал | Чугун | |||
| Количество секций | 3 | 4 | 5 | 6 |
КОНТУР ОТОПЛЕНИЯ |
||||
| Камера сгорания | Открытая | |||
| Тип розжига | Электророзжиг | |||
| Полезная мощность, (газ) | 17 кВт | 26 кВт | 35 кВт | 44,5 кВт |
| Ёмкость котла | 9,1 литров | 11,6 литров | 14,1 литров | 16,6 литров |
| Диапазон настройки температуры подающей линии | от 45 до 85 ℃ | |||
| КПД | 90% | |||
| Рабочее давление | 0,5 — 3,0 Атм | |||
| Рекомендуемое рабочее давление | 1-2 Атм | |||
| Расширительный бак | 10 литров | |||
КОНТУР ПОДАЧИ ГАЗА |
||||
| Давление природного газа на входе | 20 мбар | |||
| Давление сжиженного газа на входе | 37 мбар | |||
РАСХОД ГАЗА В КОТЛАХ МЕДВЕДЬ KLOM |
||||
| Максимальное потребление газа G20 при номинальной мощности | 2,0 м³/ч | 3,15 м³/ч | 4,1 м³/ч | 5,2 м³/ч |
| Максимальное потребление газа G31 при номинальной мощности | 1,6 кг/ч | 2,0 кг/ч | 3,3 кг/ч | — |
ЭЛЕМЕНТЫ ПАНЕЛИ УПРАВЛЕНИЯ |
||||
| Жидкокристаллический дисплей | Да | |||
| Индикация температуры | Да | |||
| Индикация неисправностей | Да | |||
| Индикация давления | Да | |||
ТЕРМОРЕГУЛЯТОРЫ ДЛЯ МЕДВЕДЬ KLOM |
||||
| Exabasic | Совместим | |||
| Exacontrol | Совместим | |||
| Thermolink B | — | |||
| Thermolink P | Идеально совместим | |||
| Thermolink S | Совместим | |||
| Exacontrol 7 | Совместим | |||
| Kromschreder E8.4401 | — | |||
| Панель управления NO | — | |||
БЕЗОПАСНОСТЬ КОТЛА МЕДВЕДЬ KLOM |
||||
| Датчик тяги | Да | |||
| Термостатический регулятор | Нет | |||
| Контроль пламени | Да | |||
| Предохранительный клапан | Нет | |||
| Тепловой предохранитель | Да | |||
| Защита от замерзания | Да | |||
| Защита насоса от заклинивания | Да | |||
ЭЛЕКТРИЧЕСКИЕ ХАРАКТЕРИСТИКИ |
||||
| Напряжение / Частота | 230В/50Гц (однофазное) | |||
| Максимальная потребляемая мощность | 15 Вт | |||
| Класс защиты | IP 20 | |||
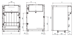
Габариты котла Медведь KLOM


| 20KLOM | 30KLOM | 40KLOM | 50KLOM | |
| Высота, мм | 880 | 880 | 880 | 880 |
| Ширина, мм — (A) | 335 | 420 | 505 | 590 |
| Глубина, мм — (C) | 600 | 600 | 600 | 620 |
| Вес, кг | 90 | 110 | 130 | 150 |
| (B), мм | 180 | 222 | 265 | 307 |
| (D), мм | 130 | 130 | 150 | 180 |
| (E), мм | 100 | 100 | 100 | 120 |
Дымоход для котла Медведь KLOM
Так как котел идет с открытой камерой сгорания — ему необходим дымоход с естественной тягой.




Самый простой вариант организовать систему отведения сгоревших газов, если у вас не имеется дымоход — установить турбонадставку с горизонтальной трубой диаметром 80 мм.
Максимальная длина дымохода при таком подключении — 10 метров, каждое колено на 90 градусов — сокращает длину на 1 метр.
Варианты монтажа дымохода с турбонадставкой


Подключение котла Протерм Медведь
ПОДКЛЮЧЕНИЕ К ЛИНИИ ОТОПЛЕНИЯ:
- Установите все необходимые запорные и защитные устройства между контуром отопления и котлом;
- На линию обратки смонтируйте кран опорожнения и заполнения;
- Подключите линию подачи к выходу подачи котла и линию обратки к выходу обратной линии котла.
Патрубок подающей и обратной линии отопления имеет размер — 1 дюйм.


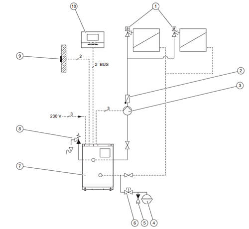
Подключение котла Медведь KLOM с комнатным терморегулятором и датчиком наружной температуры
Если необходимо производить только отопление помещения, без нагрева воды для бытовых нужд (ГВС) с помощью котла, то вам отлично подойдет данная схема.


Благодаря комнатному терморегулятору (10) выставляется температура в помещении.
На схеме изображен терморегулятор Thermolink P — так как он является наиболее функциональным.
Данный терморегулятор позволяет выставить температуру по недельному графику, указав какую именно температуру нужно поддерживать в определенные часы на неделе. Помимо всего прочего, в отличии от модели exacontrol 7, данный терморегулятор общается с котлом и передает текущую температуру по шине данных eBUS, а не просто подает сигнал о включении или выключении котла.
Так же, не малую роль имеет уличный датчик температуры (9), который вносит коррективу в кривую отопления и позволяет котлу выставлять более верную температуру на линии подачи.
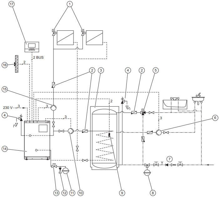
Пример подключения котла Медведь KLOM с бойлером, комнатным терморегулятором и датчиком наружной температуры


Данная схема демонстрирует вариант подключения одноконтурного котла с бойлером косвенного нагрева. В качестве ёмкости для нагрева воды, не обязательно выбирать продукцию того же бренда, что и котел.
Инструкции на котел Медведь KLOM
ВЕРСИЯ KLOM R17
»Сертификат на котел Медведь KLOM и турбонадставки R17
»Инструкция по установке и обслуживанию на котел Медведь KLOM R17
»Инструкция по установке турбонадставки на котел KLOM R17
ВЕРСИЯ KLOM R16
» Инструкция по установке и обслуживанию на котел Медведь KLOM R16
» Сертификат на котел Медведь KLOM и турбонадставки R16
» Инструкция по установке турбонадставки на котел KLOM R16