Дымоход для газового котла: особенности и требования к устройствам


Особенности устройства дымохода
Вне зависимости от выбранной разновидности дымохода, он будет включать в свой состав следующие компоненты:
- трубу для отведения дыма;
- проходной патрубок;
- переходник для соединения дымоходной трубы с патрубком котла;
- хомуты и крепежные кронштейны;
- телескопические трубки;
- тройник со штуцером для слива конденсата;
- отводы;
- наконечник в форме конуса.Схема дымохода газового котла
Для изготовления дымоотвода могут использоваться разные материалы. Ознакомьтесь с особенностями наиболее распространенных решений и сделайте свой выбор.
Кирпичный дымоход
Кирпичный дымоход
Если судить объективно, то дымоход из кирпича это уже даже не прошлый, а позапрошлый век. Подобная дымоотводящая система имеет сложную конструкцию и требует серьезных временных, трудовых и финансовых затрат на обустройство.
Помимо этого, дымоход из кирпича будет уступать современным «собратьям» по множеству значимых показателей.
Дымоход из кирпича
Дымоход из оцинкованной трубы
Устройство дымохода
Конструкция типа «сэндвич» из труб по праву считается одним из самых эффективных и удачных вариантов дымоотводящих приспособлений.
На сегодняшний день производители предлагают огромный ассортимент таких дымоходов. Среди их преимуществ нужно, прежде всего, отметить устойчивость к агрессивным внешним воздействиям и различным механическим нагрузкам.
Непосредственно «сэндвич» имеет предельно простое строение. Он состоит из двух труб отличающегося диаметра, одна из которых вставлена в другую. Для заполнения зазора между такими трубами чаще всего применяется негорючая базальтовая вата.
Сэндвич труба для дымохода
Коаксиальный дымоход для газового котла
Коаксиальный дымоход Котел газовый настенный
Современный вариант с отличными эксплуатационными характеристиками и презентабельным дизайном. Изготавливается по схеме «труба в трубе». Предназначен для использования с газовыми котлами, камера сгорания которых выполнена по закрытому типу. В подобного рода оборудовании забор воздуха для горения газа забирается с улицы, а не из отапливаемой комнаты.
Принцип работы коаксиального дымохода
Подача воздуха осуществляется посредством внешней трубы, проложенной через наружную стену строения. Дым с примесями выводится сквозь внутреннюю трубу. Подобное устройство выгодно и тем, что оно исключает необходимость монтажа дополнительной вентиляционной системы.
Вид установленного коаксиального дымохода
Помимо этого, специфическая форма коаксиального дымохода исключает возможность образования конденсата на его стенках, что имеет особенно важное значение в отопительных системах, функционирующих на газовом топливе.
Цены на популярные модели газовых котлов
Керамический дымоход
Керамический дымоход
Это надежная, простая, пожаробезопасная, легкая в монтаже и доступная по стоимости конструкция. Ее устройство предельно простое. Такой дымоход представляет собой керамическую трубу, обернутую изоляционным материалом (обычно это минвата) и помещенную в оболочку из керамзитобетона.
Вне зависимости от выбранной разновидности дымохода, обустройство этой конструкции должно выполняться с соблюдением ряда важных требований.
Узнайте доступные способы, как прочистить дымоход своими руками, из нашей новой статьи.
Требования к дымоотводящей конструкции
Рекомендованные варианты размещения дымохода
- Максимально допустимый уклон участков дымотводящей конструкции – 30 градусов.
- Длина ответвлений в стороны не может превышать 100 см.
- Дымоотводящая система должна быть сделана без уступов.
- Поперечные сечения исключаются.
- Максимальное количество колен — 3.
- Допустимый радиус закругления — не меньше диаметра используемой трубы для отведения дыма.
- На поворотах нужно установить ревизионный люк для сброса конденсационной жидкости и чистки системы.
- Если сооружается дымоход прямоугольной формы, ширина одной его стороны не должна превышать ширину второй в 2 раза, т.е. нельзя, чтобы изделие имело вытянутый вид.
- Внизу трубы нужно обустроить капельник и ревизию.
- Не допускаются даже несущественные прогибы элементов конструкции.
- При наращивании дымохода одно звено конструкции должно надеваться на второе минимум на 0,5 диаметра трубы.
- Наличие зазоров между элементами конструкции под запретом.
- В участках прохождения дымоходом перегородок и перекрытий не может быть никаких стыков.
- Соединение всех элементов системы должно быть как можно более плотным.
- Минимально допустимый наклон дымоотводящей трубы в направлении отопительного агрегата – 0,01 градуса.
- Внутренние стенки трубы должны быть максимально гладкими, наличие шероховатостей крайне нежелательно.
- Общая длина горизонтальных частей дымохода не может быть больше 300 см для строящихся домов и 600 см для возведенных зданий.
- Минимально допустимое расстояние между трубой и поверхностями из легко воспламеняющихся материалов – 250 мм, из негорючих – 50 мм.
- В местах пересечения дымоходом перегородок и перекрытий нужно сделать качественную теплоизоляцию.Высота дымохода для газового котла
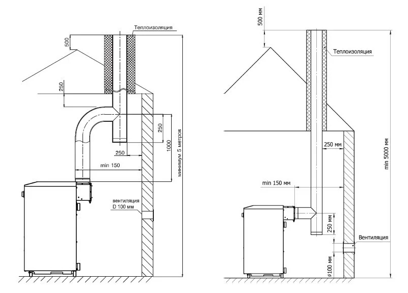
Отдельного внимания заслуживают требования к высоте дымоотводящей трубы по отношению к коньку кровельной конструкции. Так, дымоход нужно вывести за участок ветрового подпора и смонтировать на такой высоте:
- если горизонтальное отдаление от конька превышает 300 см – выше воображаемой линии, проложенной вниз от кровельного конька к горизонту под десятиградусным уклоном;
- если дымоход удален от конька на 150-300 см – на едином уровне с коньком;
- если горизонтальное отдаление не превышает 150 см – не ниже полуметра от конька кровли.
Дымоход должен возвышаться над прилегающим участком крыши минимум на 50 см. Если кровля плоская (совмещенная) этот показатель следует увеличить до 200 см.
| Расстояние от конька до дымохода, м | Высота дымохода для газового котла относительно конька, м |
|---|---|
| До 1,5 | 0,5 |
| 1,5-3 | вровень |
| >3 | проводим воображаемую линию под углом 10 градусов к горизонту вниз, вровень с этой линией |
Пошаговая инструкция по сооружению дымоотводящей системы
Варианты расположения дымохода для газового котла Как установить сэндвич дымоход
Порядок обустройства дымохода будет рассмотрен на примере сооружения сэндвич-системы из труб. Это самое оптимальное и универсальное решение. Существует 2 метода сборки подобной конструкции: в доме и за его пределами. Изучите оба варианта и выберите подходящий.
Вне здания
Схема установки газового дымохода Расположение дымохода для газового котла
Первый шаг. Подключаем к патрубку отопительного агрегата проходной элемент, предназначенный для прокладывания через стену.
Элементы для подключения газового котла к дымоходу Подключение газового котла к дымоходу
Второй шаг. Наносим на поверхность стены разметку в соответствии с размерами проходного элемента и вырезаем проем.
Проем в стене
Третий шаг. Выводим дымоотводящую трубу из помещения.
Вывод трубы через проем
Четвертый шаг. Выполняем тщательную изоляцию отверстия и проходящей сквозь него трубы.
Как самим сделать накладные пластины
Пятый шаг. Прикрепляем к трубе тройник с ревизией, затем ставим заглушку
Сэндвич тройник Заглушка для ревизии Подключение тройника с ревизией Подключение тройника с ревизией (кронштейн и хомут)
Шестой шаг. Наращиваем дымоход, присоединяя новые звенья до достижения требуемой длины. Набрав запланированную высоту, устанавливаем на трубу наконечник конусной формы. Он защитит систему от осадков и ветра. Для крепления трубы к стене строения используем кронштейны. Шаг размещения фиксирующих элементов не должен быть меньше 200 см.
Сборка дымохода газового котла
Седьмой шаг. Усиливаем все стыки конструкции с помощью хомутов. Стягиваем их проволокой либо болтами.
Восьмой шаг. Окрашиваем дымоход специальным термостойким лакокрасочным составом. Он обеспечит должную защиту материала от ржавчины.
Видео — Дымоход сэндвич
Внутри дома
Внутри дома
Начинаем с подготовки:
- намечаем в перекрытиях и крыше отверстия для трубы;
- сверив метки с габаритами патрубка, делаем проем для дымохода.
Далее занимаемся непосредственно монтажом дымохода.
Первый шаг. Подключаем переходной адаптер к патрубку агрегата.
Второй шаг. Устанавливаем тройник и ревизию.
Третий шаг. Начинаем наращивать дымоход.
Монтаж и установка дымохода своими руками
При необходимости выполняем работу с применением т.н. колен. В местах пересечения трубой перекрытий применяем специальный защитный патрубок.
Стыковка
Четвертый шаг. Надеваем на дымоход лист нержавеющей стали. Заранее в листе вырезаем отверстие, несколько превышающее диаметр трубы. Такой лист должен находиться с обеих сторон каждого перекрытия.
Схема обустройства отверстия в перекрытии Потолочно-проходное устройство Устройство короба потолочно-проходного устройства Устройство дна короба потолочно-проходного устройства Установка потолочно-проходного устройства Выход трубы дымохода через потолочно-проходное устройство
Пятый шаг. Усиливаем стыки конструкции с помощью хомутов.
Шестой шаг. При необходимости прикрепляем трубу к чердачным балкам. Для этого используем кронштейны (через каждые 400 см) и стенные хомуты (через каждые 200 см).
Крепление дымохода кронштейном Кровельный элемент 20/45 градусов диаметр 300 мм (сэндвич) Кровельный проходник Монтаж и установка дымохода своими руками Грибок дефлектор
Седьмой шаг. Монтируем на выход дымохода наконечник (дефлектор) в форме конуса.
Схема сборки вытяжки для газового котла Элементы дымохода
Цены на различные виды дымоходов
Изоляция дымоотводящей конструкции
Изоляция дымоотводящей конструкции
В точках соприкосновения элементов дымоотводящей трубы с легко воспламеняемыми материалами надо обустроить надежную теплоизоляцию. Для ее обеспечения покройте проходной патрубок базальтовой ватой с фольгированным слоем. Крепление утеплителя выполняйте с помощью огнестойкой мастики. Дополнительно укладывайте минеральную вату по периметру каждого проема в перегородках и перекрытиях.
В завершение монтажных мероприятий обязательно убедитесь в герметичности каждого шва системы. Для этого достаточно нанести на швы простой мыльный раствор. Появление мыльных пузырей свидетельствует о нарушении герметичности системы. Исправьте все обнаруженные неполадки в кратчайшие сроки.
Схема подключения котла Котел газовый напольный
Удачной работы!
Видео – Дымоход для газового котла
Подбираем дымоход для газового котла: типы, расчёт, пошаговая инструкция по монтажу


Для вывода продуктов горения, образующихся при сгорании природного газа, используются дымоходы различной конструкции. Ранее дымоходы возводились только из асбестоцементных труб и кирпича. Сейчас же дымоотводящую трубу можно собрать из долговечных и лёгких материалов, обладающих гораздо меньшей стоимостью.
Требования к дымоходам для газовых котлов
Проектирование, сборка, монтаж и другие мероприятия, направленные на устройство дымового канала, регламентируются нормативными документами, в которых чётко и ясно прописаны основные требования к этим конструкциям.
К нормативным документам, регулирующим устройство дымоходов для газовых котлов, относится СНиП 2.04.05–91 «Отопление, вентиляция и кондиционирование», а также ДБН В.2.5–20–2001 «Внутренне устройство газоснабжения».
Для напольных и настенных газовых котлов чаще всего монтируют стальной дымоход
На основе этих документов к дымоотводящим конструкциям, которые будут использоваться совместно с отопительными котлами, предъявляются следующие требования:
- сечение дымовой трубы — не может быть меньше, чем выходной патрубок газового котла. Например, если патрубок имеет сечение Ø150 мм, то минимальный диаметр дымовой трубы также должен быть не менее 150 мм. На всей протяжённости дымохода труба не должна иметь зауженных участков и искривлений;
- расположение дымового канала — дымовая труба должна идти строго вверх. При необходимости возможен уклон в 30 о. При этом длина отводов может быть не более 100 см, а их максимальное количество — не более 3. Если требуется поворот трубы, то радиус закругления должен быть больше или равен диаметру используемой трубы;
- высота дымохода над коньком — не менее 0,5 м в случаях, когда труба располагается на расстоянии до 1,5 м от конька кровли. Если это расстояние составляет от 1,5 до 3 м, то допускается устройство трубы вровень с уровнем конька. В остальных случаях проводится условная линия от уровня конька под углом в 10 о. Оголовок трубы должна «касаться» этой линии. Расстояние от свеса кровли до дымовой трубы — не менее 1,5 м;Надкровельная часть дымохода должна иметь определённую высоту в зависимости от расстояния до конька
- материалы — для изготовления дымохода используются только негорючие газонепроницаемые материалы. При наращивании конструкции верхняя часть трубы должна надеваться на нижнее звено. При этом место контакта необходимо обрабатывать негорючим герметиком;
- устройство — минимальное расстояние от дымовой трубы до объектов и поверхностей, выполненных из воспламеняющихся материалов, должно составлять не менее 25 см. В остальных случаях — не менее 5 см. При проходе дымохода через перекрытия и кровлю не должно быть прямого контакта дымовой трубы с этими конструкциями. Внизу дымохода обязательно монтируется модуль ревизии с капельником.
Приведённые выше требования являются общими и должны выполняться во всех случаях без исключения. Выполняя монтаж дымохода, следует помнить, что даже небольшие отклонения от значений, предъявляемых нормативными документами, могут вызвать снижение срока службы дымовой трубы, а в некоторых случаях привести и к более серьёзным последствиям.
Конструкции котлов и вывод дымовой трубы
Конструктивно газовый котёл представляет собой устройство, состоящее из газовой горелки, к которой через форсунки поступает газ, и теплообменника, который нагревается за счёт энергии, получаемой во время сгорания газа. Газовая горелка располагается в топочной камере. Движение тепла происходит при помощи циркулярного насоса.
Помимо этого, современные типы газовых котлов оснащаются различными модулями самодиагностики и автоматики, позволяющими использовать оборудование в автономном режиме. При выборе дымохода обращайте внимание на тип камеры сгорания котла. Именно от её конструкции будет зависеть способ забора воздуха, необходимого для сгорания газа, а вследствие этого и оптимальный тип дымохода.
Для разных типов камеры сгорания подходят разные типы дымоходов
Камера сгорания у газовых котлов бывает двух типов:
- открытая — обеспечивает естественную тягу. Забор воздуха происходит из помещения, в котором установлено отопительное оборудование. Отвод продуктов горения осуществляется посредством естественной тяги при помощи дымовой трубы с выходом через кровлю;
- закрытая — обеспечивает принудительную тягу. Забор воздуха для горения топлива происходит с улицы. В редких случаях воздух может забираться из специального помещения, оборудованного приточной вентиляцией. Для одновременного отвода топочных газов и забора свежего воздуха используется дымоход коаксиального типа, который выводится наружу через ближайшую несущую стену.
Зная тип топочной камеры, можно без особого труда подобрать или изготовить подходящий по конструкции дымоход. В первом случае, когда котёл оборудован открытой камерой сгорания, используется обычный тонкостенный или утеплённый дымоход.
Для котлов с закрытой камерой сгорания используется коаксиальный дымоход, который представляет собой конструкцию, состоящую из труб разного диаметра. Труба с меньшим сечением закрепляется внутри трубы большего диаметра посредством специальных стоек. По внутреннему каналу происходит отвод углекислого газа и других продуктов горения, а через промежуток между внешней и внутренней трубой свежий воздух поступает в закрытую топочную камеру.
Способы устройства дымовых труб
По способу устройства дымовые трубы подразделяются на:
- внутренние — дымоходы, выполненные из металла, кирпича или керамики. Представляют собой как одностенную, так и утеплённую двухстенную конструкцию. Располагаются вертикально вверх. Возможно присутствие нескольких колен со смещением на 30 о ;
- наружные — коаксиальные или сэндвич-дымоходы. Располагаются также вертикально вверх, но дымовая труба выводится наружу через несущую стену горизонтально. После вывода трубы устанавливается поворотное колено на 90 о и опорные кронштейны, позволяющие провести монтаж в нужном направлении.
Дымоход может выводиться на улицу через стену в непосредственной близости от котла или традиционным способом через крышу
При выборе способа устройства дымохода следует учитывать размеры здания, в котором находится оборудование. Для небольших построек целесообразней использовать внешние дымоходы, так как они позволяют вывести дымовую трубу за пределы помещения.
В остальных случаях следует отталкиваться от личных возможностей. Если позволяет пространство и есть возможность выполнить качественную изоляцию в местах прохода трубы через перекрытия, то внутренний дымоход будет лучшим решением. Особенно если конструкция будет обложена кирпичом или защищена керамическим коробом.
Дымоходы для газовых котлов своими руками
Как и в случае с другим отопительным оборудованием, дымоход для газового котла можно приобрести в специализированных магазинах. Это будет стандартное модульное изделие, которое подбирается с учётом типа котла и его мощности.
Из чего сделать дымоход для газового котла
Дымоход для газового котла можно сделать из различных материалов. Главное, чтобы материал был негорючим, устойчивым к химически агрессивной среде и не пропускал газы, выходящие по дымовому каналу.
Для изготовления деталей стальных дымоходов используется сталь с добавлением молибдена, титана и никеля
С учётом нормативных требований для изготовления дымохода используются следующие материалы:
- кирпич — традиционный материал для изготовления дымоходов твердотопливных печей. Для кладки дымовой трубы используют печной огнестойкий кирпич класса A или Б. При использовании газового оборудования часто применяют комбинированный подход, когда в качестве внутреннего канала используется стальная или асбоцементная труба;
- сталь — применяется для создания дымоходов любой конфигурации. Качество и жаростойкость материала определяет его сплав, который обозначает специальная маркировка. Так, для изготовления дымоходов лучше подходят изделия из стали AISI 316i, AISI 321 или AISI 310S;
- керамика — обожжённая смесь из глины и песка, из которой делают комбинированные дымоходы. Внутренний канал изготавливается из керамической трубы определённого сечения. В качестве защитного кожуха используется короб из керамзитобетонной оболочки или кирпича.
Если проводить детальное сравнение, то лучшим материалом по соотношению цены и качества является оцинкованная сталь марки AISI 321 и AISI 310S. Дымоходы из такой стали рассчитаны на температуру топочных газов до 800 и 1000 о C соответственно.
Керамические дымоходы обладают высокими экплутационными характеристиками, но их стоимость заметно выше аналогов из стали
Средний срок службы стальных дымоходов составляет 13–17 лет, но за счёт высокой унификации деталей не придётся менять конструкцию полностью. При ремонте заменяется лишь часть прогоревших модулей.
Керамические дымоходы имеют высокие эксплуатационные характеристики и срок службы более 50 лет, но их стоимость заметно выше аналогов из стали. Поэтому этот вид дымоходов рекомендуется использовать только если есть достаточное количество средств и хочется построить сооружение надолго. Применение кирпичных дымоходов совместно с газовым оборудованием неоправданно как по трудозатратам, так и по конечной стоимости конструкции.
Как рассчитать параметры дымохода для газового котла
Для того чтобы правильно подобрать или изготовить дымоход, необходимо провести расчёт сечения дымовой трубы, а также её высоты относительно уровня конька. Общая высота дымохода подбирается согласно нормативным правилам, указанным в СНиП 2.04.05–91.
Таблица: зависимость сечения дымовой трубы от мощности газового котла
| Сечение дымовой трубы, мм | Пиковая мощность газового котла, кВт |
| 120 | 24 |
| 130 | 30 |
| 170 | 45 |
| 190 | 55 |
| 220 | 80 |
| 230 | 100 |
Для расчёта сечения трубы используется следующая формула — F = (K ∙ Q) / (4,19 ∙ √ˉ Н), где:
- K — постоянная величина, значение которой варьируется от 0,02 до 0,03;
- Q — максимальная производительность газового оборудования, указанная в спецификации;
- H — расчётная высота дымовой трубы согласно СНиП.
Для газовых котлов минимальная высота дымовой трубы должна быть не менее 5 м. Высота относительно конька подбирается из правил, описанных в начале статьи. Напомним, что минимальная высота относительно конька должна быть не менее 0,5 м.
После того как площадь трубы рассчитана, необходимо сравнить полученное значение с данными, которые указаны в таблице. При необходимости расчётный диаметр дымового канала округляется к большему значению.
Монтаж дымохода своими руками
Для сборки дымохода используются одноконтурные стальные трубы или специальные сэндвич-трубы нужного диаметра. Если выбран первый вариант, то после сборки дымохода рекомендуется провести его утепление. Во втором случае теплоизоляцию дымовой трубы проводить не нужно.
При использование сэндвич-дымохода дополнительное утепление дымовой трубы не требуется
В качестве примера приведём технологию монтажа стального дымохода для газового котла. Для сборки дымохода потребуются прямые трубы из стали длиной 50 или 100 см, отводы дымохода 30 о, проходная коробка для стен и перекрытий, дефлектор, обжимные хомуты и термостойкий герметик.
Если диаметр выходного патрубка не совпадает с диаметром дымовой трубы, то используется соответствующий переходник. В качестве изоляционного материала лучше применять базальтовую вату.
Монтаж дымохода для газового котла проводится в следующей последовательности:
- Выполняется подсоединение одностенной или утеплённой трубы к выходному патрубку газового котла. Для этого патрубок промазывается термостойким герметиком, после чего на него надевается переходник, который затягивается обжимным хомутом.
- Для соединения переходника с трубой используется аналогичный подход. Сначала монтажный конец переходника обрабатывается герметиком. Далее на него насаживается прямая труба на нужную глубину. После чего соединение затягивается хомутом.Перед сборкой дымохода рекомендуется проверить его комплектность на наличие всех модулей и крепёжных элементов
- Для вывода дымовой трубы через потолок потребуется выпилить в нём отверстие квадратного сечения. Размер отверстия подбирается таким образом, чтобы от дымовой трубы до перекрытия оставалось расстояние не менее 20 см.
- В выпиленное на потолке отверстие монтируется стальной короб. Для крепления используются стальные саморезы длиной 30–50 мм. Затем через короб пропускается труба, которая монтируется на модуль, подсоединённый к патрубку. Пространство между трубой и коробом заполняется минерализованным утеплителем. Сверху короб закрывается стальной пластиной.Место вывода дымовой трубы через потолок обязательно изолируется стальным коробом
- Если после ввода трубы в межчердачное пространство требуется её смещение, то проводится монтаж колена 30 о по описанной выше схеме. В остальных случаях проводят монтаж прямого участка трубы.
- Для вывода дымохода через кровлю выполняются аналогичные действия. Сначала выпиливается отверстие квадратного сечения нужного размера. Далее проводится установка монтажной пластины с отверстием под трубу. Затем монтируется прямой участок дымовой трубы. В завершение на дымовую трубу надевается конусный доборный элемент из стали или негорючего пластика.На выходное отверстие дымохода обязательно устанавливается дефлектор
- На завершающем этапе проводится монтаж оставшегося участка дымовой трубы. На конец трубы устанавливается оголовок и дефлектор. После сборки проводится проверка работоспособности собранной конструкции. Для этого достаточно, чтобы оборудование проработало на 50–60% от максимальной мощности в течение одного часа.
При монтаже внешнего дымохода используется поворотное колено 90 о. Колено подсоединяется напрямую к переходнику, который также монтируется на патрубок газового котла.
Для вывода дымохода потребуется выпилить отверстие в несущей стене. Размер отверстия подбирается так же, как и в случае с потолком и кровлей. Далее в стене монтируется стальной короб, через который пропускается труба. Для заполнения короба используется базальтовая или минеральная вата.
Для повторного поворота трубы монтируется ещё одно колено 90 о. В качестве несущей конструкции используется специальная опора с кронштейном, которая устанавливается под поворотное колено. Шаг установки подвесных кронштейнов 1–1,5 м. Дальнейшие действия аналогичны — необходимо собрать дымовую трубу из прямых изделий, которые соединяются при помощи хомутов и герметика.
Коаксиальный дымоход для газового котла своими руками
Перед установкой коаксиального дымохода необходимо проверить комплектность приобретённого изделия. Если какой-то из элементов отсутствует, то следует поменять недостающий комплект на полный, который должен включать в себя:
- трубу с фланцем;
- коаксиальное колено 90 о ;
- соединительный адаптер;
- настенные накладки;
- уплотнительные кольца;
- соединительные хомуты;
- декоративную розетку;
- крепёжные винты.
Для сборки коаксиального дымохода необходимо иметь полный комплект труб и соединительных элементов
Процесс монтажа коаксиального дымохода состоит из следующих действий:
- Выполняется соединение внутреннего колена коаксиальной трубы с выходным патрубком газового котла. Для этого на патрубок наносится термостойкий герметик и надевается соединительный адаптер. Для фиксации адаптера используется соединительный хомут, который затягивается при помощи крестовой или шлицевой отвёртки.Дымовая коаксиальная труба должна быть наклонена в строну улицы на 2–3 градуса
- Для вывода коаксиальной трубы через стену сверлится отверстие, диаметр которого должен быть на 1,5–2 см больше диаметра дымохода. Для этого используется перфоратор или электродрель с корончатой насадкой. При сверлении следует соблюдать уклон в сторону улицы в 2–3 о.
- Далее, в отверстие устанавливается асбестовая труба. Пространство между трубой и стеной заполняется утеплителем. Со стороны дома монтируется декоративная накладка. Через подготовленное отверстие пропускается коаксиальная труба, которая подсоединяется к поворотному колену на 90 о.После установки на конец коаксиальной трубы монтируется ветрозащита
- Со стороны улицы на трубу надевается защитно-декоративная насадка, которая прикручивается к поверхности стены при помощи саморезов. На конец коаксиальной трубы надевается специальный дефлектор или защитная накладка от замерзания.
В зависимости от производителя состав набора для установки дымоход может несколько отличаться, но основные элементы в виде колена, трубы, хомутов и накладок обязательно должны быть в комплекте. Перед монтажом коаксиального дымохода настоятельно рекомендуется изучить инструкцию.
Видео: дымоход для газового котла из сэндвич-труб
Как уменьшить температуру дымовых газов в дымоходе
При сгорании природного газа образуется углекислый газ, пар, сернистые солеобразующие оксиды т. д. Оптимальная температура дымовых газов на выходе из дымохода должна составлять 100–110 о С.
Если температура уходящих газов будет ниже точки росы, то есть температуры конденсации воздуха, то водяные пары, содержащиеся в продуктах горения, будут оседать на стенках дымовой трубы. Если это будет происходить постоянно, то дымоход может быстро разрушиться.
При слишком низкой температуре топочных газов на выходе из дымохода будет образовываться конденсат, а внешняя часть трубы начнёт обмерзать
К тому же наличие постоянного конденсата в дымовом канале приводит к ослаблению естественной тяги. Поэтому так важно следить за температурой уходящих газов, которая напрямую зависит от сечения дымовой трубы.
Из сказанного можно сделать вывод, что при правильном расчёте температура дымовых газов будет находиться в районе оптимальных значений. Если же температура завышена и её требуется уменьшить, это напрямую свидетельствует о том, что сечение дымовой трубы не соответствует мощности газового котла. Для уменьшения температуры выходящих газов рекомендуется пересобрать дымоотводящую систему с учётом нормативных значений.
Видео: конденсат в дымоходе
Как проверить и отрегулировать тягу в дымоходе газового котла
Тяга — это снижения давления в месте, где происходит сжигания топлива. Снижение давления происходит за счёт удаления продуктов сгорания через дымовой канал. Если говорить в рамках этой статьи, то тяга заставляет свежий воздух поступать в камеру сгорания, где наблюдается пониженное давление, возникающее из-за того, что продукты сгорания газа выводятся наружу.
Наличие тяги свидетельствует о том, что дымоход спроектирован и установлен правильно, а оборудования работает исправно. Отсутствие тяги может являться прямым или косвенным подтверждением необходимости профилактических работ или ремонта оборудования и дымооводящей системы.
Скорость воздушного потока в дымоходе можно измерить специальным прибором — анемометром
Для проверки уровня тяги используются следующие способы:
- визуальный осмотр — в помещении, где расположено отопительное оборудование, не должно наблюдаться задымления;
- использование подручных средств, например, листа бумаги. Его подносят к смотровому отверстию. Если тяга есть, то лист будет отклоняться в сторону отверстия;
- измерение специальным прибором — анемометром. Он используется для контроля скорости воздуха.
Для контроля тяги лучше использовать последний способ, так как только он покажет точное значение. При измерении естественной тяги скорость дымовых газов должна быть в диапазоне 6–10 м/с. Значение взято из СП 41–104–2000 «Проектирование автономных источников теплоснабжения».
Если требуется уменьшить уровень тяги, то для этого потребуется пересобрать дымоход на основе дымовой трубы большего сечения. Для увеличения тяги рекомендуется проверить качество монтажных стыков и провести механическую чистку дымового канала при помощи стального троса с насадкой-ёршиком.
Если это не помогло, то единственный выход — это замена дымохода с предварительным просчётом сечения дымовой трубы. При этом количество поворотных элементов желательно свести к минимуму или вообще их убрать.
Почему задувает котёл и как это устранить
Основная причина, по которой происходит задувание горелки в котле, — это эффект обратной тяги, возникающий из-за проблем с дымоходом.
Прежде чем приступать к каким-либо мероприятиям, следует проверить высоту дымовой трубы над уровнем конька и наличие установленного дефлектора, который позволяет снизить проникновение потоков ветра в дымовой канал. Если устройство трубы выполнено не по правилам, то после описанных ниже действий, потребуется нарастить трубу и поставить дефлектор.
Иногда для того чтобы увеличить тягу, нужно очистить дымоход от сажи
Для того чтобы решить проблему с задуванием котла, потребуется выполнить следующее:
- В первую очередь необходимо проверить уровень тяги в трубе. Для лучше использовать анемометр. Если его найти не удалось, то при работающем котле нужно прислонить бумагу к выходному отверстию дымохода. Если лист притягивается к дымоходу, то проблем с тягой быть не должно.
- Если удалось обнаружить, что задувание происходит из-за потери естественной тяги, то потребуется проверить места соединения дымовой трубы. Для этого используется тепловизор. Если труба пропускает воздух, то прибор покажет сильную разницу температур между основной трубой и стыком двух модулей.
- Если дымоход собран правильно, то необходимо выполнить прочистку дымового канала при помощи троса с насадкой. Диаметр насадки подбирается под сечение трубы дымохода. Для уборки сажи, смол и других продуктов горения используется ревизионное отверстие внизу дымохода.
- После выполнения этих простых действий потребуется снова проверить уровень тяги. Если естественная тяга не улучшилась, то необходимо провести работы по исправлению высоты дымовой трубы и установить дефлектор. При установке используется термостойкий герметик и обжимные хомуты.
В случаях, когда проведение описанных выше работ не дало результата, следует обратиться в газовую службу с целью проверки газового оборудования. Возможно, проблемы с задувание связаны со сверхчувствительной автоматикой.
Видео: как проверить тягу в газовом котле
Соблюдение нормативных предписаний — это гарантия, что в процессе эксплуатации дымохода не возникнет нештатных ситуаций. Особенно это касается вертикальных дымоходов, когда на исправление ошибок, допущенных при их монтаже, потребуется потратить немало времени.
Как сделать правильный дымоход для газового котла своими руками?


Здравствуй, дорогой собеседник!
Каждый из нас с детства знает о вреде угарного газа. Это коварное вещество не имеет запаха и цвета и проникает в организм человека абсолютно незаметно.
В крови молекулы СО взаимодействуют с гемоглобином и образуют карбоксигемоглобин, соединение, блокирующие попадание кислорода в ткани. Надышавшись угарным газом люди просто засыпают, чтобы больше никогда не проснуться.
Сейчас, когда загородное строительство в каждым годом набирает обороты, вопрос организации правильной системы отопления вновь становится насущным. Самое популярное сырье для обогрева в 21 веке — природный газ.
Предлагаю узнать, как правильно установить дымоход для газового котла и не допустить ошибок при его самостоятельном монтаже.
Что это такое и для чего он нужен
Дымоход — система труб, соединительных фитингов, креплений и элементов защиты конструкции.
В любом отопительном контуре с печью или котлом в виде обогревателя, в том числе работающем на газу, эта система выполняет 2 основные функции:
- Вывод продуктов горения в атмосферу.
- Обеспечение поступления свежего воздуха для полного сгорания топлива.
Если дымоход плохо справляется хотя бы с одной из поставленных задач- в организм человека неминуемо попадет тот самый опасный угарный газ.
При правильном устройстве, дымоотвод облегчает эксплуатацию котла, увеличивает его КПД, обеспечивает комфортный микроклимат в помещении и безопасность для жильцов дома.
Как устроен дымоход
Дымоотвод для газового котла состоит из нескольких основных частей:
- Труба для вывода дыма ;
- Переходник, соединяющий трубу с патрубком котла;
- Патрубок для перехода канала через стену или крышу здания;
- Крепежные элементы;
- Тройник со штуцером, необходимы для слива конденсата;
- Конденсатосборник;
- Отводы.
Подчеркну — это основные составляющие. Комплектация может меняться в зависимости от сложности конструкции дымоотвода и от материалов, из которых он изготовлен.
Принцип работы
Принцип действия любого дымохода основан на простом законе физики – теплый воздух и пары всегда легче и стремятся вверх, а холодный – тяжелее и соответственно оседает внизу.
За счет разницы температур улицы (снаружи трубы) и горячих газов (внутри системы), появляется тяга. Благодаря ей продукты сгорания не рассеиваются по комнате, а выходят в атмосферу.
Виды и конструкции
Существует несколько разновидностей дымоходов для газовых котлов:
- Кирпичный (как в виде самостоятельной системы, так и с внутренней вкладкой из нержавеющей или оцинкованной трубы);
- Одинарный металлический (выполненный из оцинкованного либо нержавеющего листа);
- Выполненный из сэндвич-элементов (каналов из двух металлических труб, вставленных одна в другую, с проложенным между ними утеплителем);
- Коаксиальный (труба меньшего диаметра вставлена в трубу большего, без прокладки утеплителя);
- Керамический (выполнен из специальных керамических блоков);
- Асбестоцементный.
Все конструкции схематично представлены на рисунках в разделе «Чертежи и схемы».
Устанавливать дымоход можно как внутри, так и снаружи помещения.
Рис. 1. Конструкция приставных и внутренних дымоходов.
Какой лучше выбрать?
При выборе дымоотводящего канала необходимо ориентироваться на оптимальное сочетание бюджета, мощности газового котла, вида камеры сгорания топлива и общих конструктивных особенностей здания.
Устройство внешнего дымохода экономит внутреннее пространство и более безопасно для жильцов дома, но такие системы подвержены воздействиям окружающей среды, поэтому их срок службы меньше.
Разновидности дымоходов в зависимости от вида камеры сгорания газа:
- Котлы с открытой камерой
Напольные газовые котлы часто выполняются с открытой топкой. Для таких устройств необходим дымоход обеспечивающий стабильно хорошую тягу. Подойдет кирпичный, керамический, дымоход из одинарных и сэндвич труб. Но следует помнить, что кирпичный дымоход гигроскопичен и сложен в монтаже, керамический – очень тяжелый.
- Котлы с закрытой камерой сгорания
В данном случае большинство мастеров рекомендует установку коаксиального дымохода, либо системы из сэндвич-труб, тройников и фитингов.
Сделать самому или заказать
Заказать дымоход у профессионалов либо сделать самому – решать вам.
Правильная самостоятельная установка дымоотводящей системы однозначно сэкономит семейный бюджет. При устройстве обязательно выполнять все требования СНиП и пожарных нормативов.
Несмотря на то, что температура выходящих газов невысока, вред от них не меньше, чем от любых других выбросов. Поэтому на герметичность стыков следует обратить особое внимание.
Так же обязательна организация системы сбора конденсата.
Строительные нормативы
Все дымоходы должны соответствовать СНиП 2.04.05-91, ДНП В 2.5-20-2001, СНиП 42-01-2002 , а так же СП 7.13130. Ни в коем случае нельзя использовать изделия, не прошедшие сертификацию.
Основные требования пожаробезопасности к дымоходам:
- Сечение дымохода должно подбираться согласно мощности котла;
- Не допускаются отклонения трубы от вертикали более, чем на 30градусов;
- Толщина стенок дымоходного канала –не менее 6см для жаростойкого бетона, не менее 12см для кирпича и не нормируется для сэндвича и асбестоцемента;
- Длина ответвления (горизонтального участка) дымохода не должна превышать 1м:
- Минимальное расстояние между трубой и стенами из горючих материалов -250мм, из негорючих -50мм. В местах прохождения трубы через стены и перегородки необходимо установить качественную теплоизоляцию;
- Диаметр дымоходного канала выбирается равным или больше выходного отверстия котла;
- Воздух в системе должен двигаться со скоростью 15-20м/с;
- Расстояние от горячей поверхности канала до деревянных элементов перекрытий должна быть больше 13см для бетона, кирпича и сэндвича и 25см для трубопровода из керамики или асбестоцемента;
- В основании дымохода необходимо организовать патрубок для удаления конденсата;
Требования к тяге:
- Дымовая труба для газовых котлов не должна быть ниже 3 м в высоту (рекомендовано 5м);
- Высота трубы над крышей:
- плоская кровля — до 500мм;
- вровень с коньком при удалении от него на 1.5-3м;
- на уровне воображаемой линии, проведенной от конька под углом 10 градусов к трубе, при расстоянии между трубой и коньком более 3м;
- Допустимый радиус закругления труб в системе равен диаметру изделия;
- Обязательно обустройство карманов для чистки (ревизий);
- Дымоход не должен иметь заужений и искривлений.
Следует учитывать, что дымоотводящая система не должна содержать более трёх поворотов. В противном случае тяга резко снижается.
О последствиях плохой тяги вы уже знаете.
Изготовление и установка дымохода своими руками
Из каких материалов лучше сделать
Самые популярные материалы для изготовления дымоходов в частном доме- кирпич, сталь и керамика. Перед тем, как сделать выбор, предлагаю ознакомиться с достоинствами и недостатками каждого материала
Кирпич, плюсы и минусы:
Дешевизна, высокая прочность, негорючесть, способность выдерживать высокие температуры, сравнительная легкость ремонта;
Необходимость устройства дополнительного фундамента, гигроскопичность, громоздкость, сложность конструкции-для установки обязательна помощь профессионального печника, кроме того, кирпич плохо обеспечивает нужное движение газа для газового котла. Проблема решается гильзованием- установкой внутрь кирпичного канала стальной трубы.
Керамика, плюсы и минусы:
Повышенная прочность и способность сохранять тепло, высокая огнеупорность (выдерживает нагрев до 1200С), относительное удобство монтажа.
Громоздкость.
Сталь:
Высокая теплопроводность, высокая огнестойкость, удобство монтажа, гладкость внутренних стенок.
Если речь идет о черном металле- подверженность коррозии, а нержавеющая сталь, в свою очередь, материал дорогой.
Вывод напрашивается сам собой – при строительстве жилого дома оптимальным будет использование керамического дымохода из труб, уложенных в шахты. Если необходимо организовать систему дымоотведения в уже построенном доме — нержавеющие трубы вам в помощь.
Схемы и чертежи
Рис. 2. Общий чертеж системы:
Рис. 3. Варианты устройства кирпичных дымоходов:
Рис. 4. Одинарный металлический дымоход:
Рис. 5. Сэндвич дымоход:
Рис. 6. Система из коаксиальных труб:
Рис. 7. Керамический дымоотвод:
Расчет размеров
Расчеты для элементов системы дымоотвода сводятся к определению основных параметров:
- Площадь поперечного сечения основной трубы;
- Высоту дымоотводящего канала.
При этом всегда следует согласовать полученные данные с таблицами СНиП и информацией, указанные в мануале для котла. Напомню – высота трубы не должна составлять менее 3, в идеале — 5 м.
От правильно подобранного диаметра трубы зависит тяга.
Рассмотрим 2 варианта расчета диаметра труб для котлов, работающих на газу:
- По мощности:
Мощность нагревателя (в кВт) умножается на 5.5. Для расчета берите паспортную (не тепловую) мощность. Если подключается 2 агрегата в один дымоход- паспортная мощность суммируется.
- По СНиП:
Измеряем диаметр выходного патрубка котла и выбираем внутренний диаметр трубы не меньше этого значения.
Видео по монтажу
По традиции — несколько полезных видео по теме.
Монтаж сэндвич-дымохода:
Коаксиальный вариант:
Керамический дымоход:
Особенности монтажа
Существует ряд жестких требований, выполнение которых при устройстве системы дымоудаления, необходимо. К ним относят расположение дымовой трубы в помещении относительно внутренних конструкций. Сведем данные в таблицу:
Таблица 1. Расстояния для прокладки дымовых каналов газовых котлов через наружную стену дома (без создания вертикального канала)
| Место установки отвода | Наименьшие расстояния, м | |||
| до котла с естественной тягой | до котла с вентилятором | |||
| Мощность оборудования | Мощность оборудования | |||
| до 7,5 кВт | 7,5–30 кВт | до 12 кВт | 12–30 кВт | |
| Под вентиляционным отверстием | 2,5 | 2,5 | 2,5 | 2,5 |
| Рядом с вентиляционным отверстием | 0,6 | 1,5 | 0,3 | 0,6 |
| Под окном | 0,25 | — | — | — |
| Рядом с окном | 0,25 | 0,5 | 0,25 | 0,5 |
| Над окном или вентиляционным отверстием | 0,25 | 0,25 | 0,25 | 0,25 |
| Над уровнем земли | 0,5 | 2,2 | 2,2 | 2,2 |
| Под частями здания, выступающими больше 0,4 м | 2,0 | 3,0 | 1,5 | 3,0 |
| Под частями здания, выступающими меньше 0,4 м | 0,3 | 1,5 | 0,3 | 0,3 |
| Под другим отводом | 2,5 | 2,5 | 2,5 | 2,5 |
| Рядом с другим отводом | 1,5 | 1,5 |
Отличительной особенностью котлов, работающих на газу, является высокий КПД. Поэтому температура исходящих газов невысока, быстро образуется конденсат, и монтировать систему нужно с учетом снижения вредного воздействия конденсата на стенки трубы.
Все стыки должны быть строго герметичны.
Частые ошибки и проблемы при установке
Неправильное устройство дымоотводящих систем влечет за собой тяжелые последствия.
Самые опасные ошибки:
- Использование пористых материалов;
- Прокладка дымохода через жилые комнаты;
- Неправильно установленные дефлекторы;
- Прокладка труб в помещениях без вентиляции;
- Вывод отработанных газов в вентиляцию;
- Плохая защита конструкции перекрытий и кровли от соприкосновения с горячими трубами;
- Использование одного дымохода для нескольких котлов (допускается 2, но при соблюдении расстояния между врезками обоих котлов не менее 50см);
- Неправильный подбор сечения канала.
Обслуживание и чистка
При эксплуатации газового дымохода образуется меньше сажи, нежели при работе котлов на твердом топливе, но все же трубы дымохода периодически загрязняются и их необходимо чистить. Существует 2 способа чистки дымоотводов газового оборудования (котлов, колонок):


- Механический
Чистку производят с применением специальных щеток, скребков, валиков. Необходимо выбирать инструменты, не способные повредить внутренние стенки дымохода. Самое популярное средство для механической чистки в наше время – вакуумный пылесос.
- Химический
Заключается в распылении на внутренние стенки дымоотвода специальных составов.
Советы специалистов
В заключении – несколько советов от специалистов.
Как правильно утеплить трубу дымохода газового котла?
Под воздействием наружного воздуха труба охлаждается и снижается температура исходящих газов, как следствие –уменьшается тяга. Этих проблем можно избежать, утеплив трубу дымохода.
Утепление дымоотводов производится разными способами:
- Кирпичные дымоходы защищаются нанесением слоя штукатурки, либо (если чердак не утеплён), каменной или базальтовой ватой. Для обеспечения сохранности утеплителя его укрывают сверху фольгой.
- Металлические дымоходы так же можно изолировать негорючими утеплителями.
- Керамические дымовыводящие системы утепляются керамзитовыми блоками и минеральной ватой.
- Асбестовые трубы нужно утеплять с особой осторожностью. При перегреве этот материал взрывается.
Заключение
Правильное устройство дымохода – гарантия спокойной безопасной жизни в комфортных условиях. Но если вы приняли решение сделать его самостоятельно- будьте предельно внимательны и не поленитесь изучить всю нормативную документацию, посмотреть обучаюшие видео и проконсультироваться с профессионалами. Кстати все это можно сделать в наших сообществах. Присоединяйтесь и делитесь опытом!
Как правильно делается дымоход для газового котла


Любой источник тепла, сжигающий топливо, выделяет побочный продукт – токсичные отработанные газы. Соответственно, установка теплогенератора в частном доме или квартире подразумевает устройство дымоходной трубы, отводящей вредные газы на улицу. По трудозатратам и цене указанные работы составляют немалую долю всего монтажа. Мы решили выделить данный этап и конкретно пояснить, как правильно сделать недорогой дымоход для газового котла. Не обойдем вниманием и другие виды отопительных агрегатов.
Варианты газоходов для загородного дома
Для отведения продуктов горения с относительно низкой температурой (до 120 °С), выделяемых газовыми котлами, подойдут следующие разновидности дымоходов:
- трехслойный модульный сэндвич из нержавеющей стали с негорючим утеплителем – базальтовой ватой;
- канал из железных или асбестоцементных труб, защищенный теплоизоляцией;
- керамические утепленные системы типа Schiedel;
- кирпичный блок со вставкой из нержавеющей трубы, укрытый снаружи теплоизоляционным материалом;
- то же, с внутренним полимерным рукавом типа FuranFlex.
Устройство трехслойного сэндвича для дымоудаления
Примечание. Газовые котлы с закрытой камерой сгорания (иначе – наддувные или турбированные) следует оснащать коаксиальными дымоходами. По факту это двустенная металлическая труба, способная одновременно всасывать воздух на горение с улицы и выбрасывать наружу дым.
Поясним, почему нельзя построить традиционный дымоотвод из кирпича или поставить обычную стальную трубу, подключив к газовому котлу. Отходящие газы содержат водяной пар, являющийся продуктом сжигания углеводородов. От соприкосновения с холодными стенками влага выпадает конденсатом, дальше события развиваются так:
- Благодаря многочисленным порам вода проникает внутрь строительного материала. В дымовых трубах из металла конденсат течет вниз по стенкам.
- Поскольку газовые и другие котлы с высоким КПД (на солярке и сжиженном пропане) работают периодически, мороз успевает прихватить влагу, превращая ее в лед.
- Ледяные гранулы, увеличиваясь в размерах, вылущивают кирпич изнутри и снаружи, постепенно разрушая дымоход.
- По той же причине стенки неутепленного стального газохода ближе к оголовку покрываются льдом. Уменьшается проходной диаметр канала.
Обычная железная труба, утепленная негорючей каолиновой ватой
Для справки. Снаружи на стыках одностенных металлических дымоотводов образуются некрасивые грязные потеки.
Рекомендации по выбору
Поскольку мы изначально взялись установить в частном доме недорогой вариант дымохода, подходящий для монтажа своими руками, рекомендуем использовать сэндвич трубы из нержавейки. Установка других типов труб сопряжена со следующими трудностями:
- Асбестовые и толстостенные стальные трубы тяжелы, что усложняет ведение работ. Вдобавок наружную часть придется обшивать утеплителем и листовым металлом. Стоимость и длительность строительства однозначно превысит сборку сэндвича.
- Керамические дымоходы для газовых котлов – лучший выбор, если застройщик располагает средствами. Системы типа Schiedel UNI надежны и долговечны, но слишком дороги и среднестатистическому домовладельцу недоступны.
- Нержавеющие и полимерные вставки применяются для реконструкции – гильзования существующих кирпичных каналов, возведенных ранее по старым проектам. Специально городить такую конструкцию невыгодно и бессмысленно.
Вариант газохода с керамической вставкой
Совет. Лучше приобретать дымоотводы сэндвич, полностью изготовленные из нержавейки – они дольше прослужат и сохранят презентабельный внешний вид. Если бюджет проекта сильно ограничен, берите модульную систему, облицованную оцинкованным металлом – конструкция простоит минимум 20 лет.
Турбированный газовый котел тоже можно присоединить к обычному вертикальному дымоходу, организовав подачу наружного воздуха по отдельной трубе. Техническое решение стоит внедрять, когда в частном доме уже сделан газоходный канал, выведенный на крышу. В остальных случаях монтируется коаксиальная труба (изображена на фото) – это наиболее экономный и правильный вариант.
Заслуживает внимания последний, самый дешевый способ возведения дымоотвода: сделать сэндвич для газового котла своими руками. Берется нержавеющая труба, оборачивается базальтовой ватой нужной толщины и обшивается кровельной оцинковкой. Практическая реализация данного решения показана на видео:
Дымоход твердотопливного котла
Режим работы дровяных и угольных отопительных агрегатов предполагает выброс более горячих газов. Температура продуктов горения достигает 200 °С и более, дымовой канал прогревается полностью и конденсат практически не замерзает. Но его замещает другой скрытый враг – сажа, оседающая на внутренних стенках. Периодически она возгорается, отчего труба может нагреться до 400—600 градусов.
Твердотопливным котлам подойдут такие типы дымоходов:
- нержавейка трехслойная (сэндвич);
- одностенная труба из нержавеющей либо толстостенной (3 мм) черной стали;
- керамика.
Примечание. Обычную нержавеющую трубу нельзя прокладывать внутри жилища без противопожарной защиты из базальтового волокна. Подробнее о монтаже дровяных отопителей читайте здесь.
Кирпичный газоход прямоугольного сечения 270 х 140 мм гильзуется овальной нержавеющей трубой
Асбестовые трубы противопоказано ставить на ТТ-котлы, печи и камины – они трескаются от высокой температуры. Простой кирпичный канал будет работать, но из-за шероховатостей станет забиваться сажей, поэтому его лучше гильзовать нержавеющей вставкой. Полимерный рукав FuranFlex не пойдет – максимальная рабочая температура составляет всего 250 °С.
Проектирование и заготовка материалов
Чтобы правильно подобрать детали модульного дымохода и сделать расчет количества материалов, выполните ряд подготовительных действий:
- Изучите требования, предъявляемые к дымоотводам газовых котлов.
- Определите способ прокладки, диаметр канала и толщину тепловой изоляции.
- Нарисуйте схему и составьте перечень материалов.
Для справки. Как правило, установка источника тепла в загородном доме начинается именно с монтажа газоходов и вытяжных труб вентиляции. Размещение теплогенератора в котельной и подключение к отоплению производится во вторую очередь.
Внутридомовые каналы лучше возводить на этапе строительства дома
Умные слова «расчет» и «проект» в приведенном списке могут смутить некоторых домовладельцев. В действительности указанные этапы не представляют большой проблемы. Чтобы вам не пришлось искать нормативы по устройству дымоходов, мы приведем их здесь.
Нормативные требования к дымоходным трубам
Указания, приведенные в строительных нормах и правилах (СНиП), нужно обязательно учесть по простой причине: компания – поставщик топлива не примет газовый котел в эксплуатацию и не подключит к магистрали, если газоход смонтирован неправильно. Требования звучат так:
- Общая длина горизонтальных участков, предшествующих вертикальной дымовой шахте, — максимум 3 метра. Следует предусмотреть небольшой уклон в сторону отопительного агрегата (1—3°).
- Допускается отклонение вертикального канала на 1 м в сторону с целью обхода кровельного свеса. Уклон обводного участка от оси дымохода – 30°.
- Число поворотов трубы ограничено – не более 3. Не принимаются в расчет колена, огибающие свес кровли.Указанная ширина разделки 51 см обусловлена прокладкой незащищенной стальной трубы. Для сэндвича промежуток сократится до 38 см
- Проходное сечение отводящего канала не может быть меньше размера соответствующего патрубка теплогенератора.
- Напольные и настенные котлы, оборудованные верхним патрубком, подсоединяются вертикальным участком длиной не менее 25 см.
- Отступ не обшитого изоляцией газохода от горючих строительных конструкций деревянного дома составляет не менее 0.5 м, от несгораемых – 10 см.
- Пересечение деревянных стен либо перекрытий (разделка) производится с интервалом 38 см между сгораемой конструкцией и внутренней стенкой дымоотвода типа сэндвич. Делать соединение секций внутри стены нельзя.
- Отводящая труба для газового котла должна подниматься на определенную высоту, дабы оголовок не оказался в зоне ветрового подпора, что заметно снижает силу естественной тяги. Высота подъема зависит от расстояния до конька и определяется по схеме.
В нижней глухой части вертикального участка предусматривается лючок для прочистки (ревизия) и конденсатосборник со штуцером сброса. Участок трубы возле котла допускается делать одностенным, но на улицу либо в соседнее чердачное помещение должен уходить сэндвич.
Важно. Минимальная высота дымоотводной конструкции должна составлять 6 м, считая от газовой горелки либо колосниковой решетки твердотопливного котла.
Определяем диаметр и способ прокладки
Решение первого вопроса звучит в требованиях к дымоходным каналам: посмотрите присоединительные размеры в паспорте теплогенератора и подберите сэндвич дымоход идентичного или большего диаметра, чем выходной патрубок.
Отступы при монтаже коаксиального дымоотвода
Вопрос второй: как подобрать толщину теплоизоляции сэндвича, ведь производитель предлагает минимум 2 варианта – 5 и 10 см. Чтобы уберечь дымоотвод, подключенный к газовому котлу, от обильного выделения конденсата и обмерзания, достаточно толщины утеплителя 50 мм. Изоляцию 10 см нужно использовать в северных регионах с критически низкими зимними температурами.
Остается выбрать способ прокладки из двух возможных:
- вывод горизонтального участка наружу сквозь стену и присоединение к вертикальному приставному дымоходу;
- проходить вертикальной трубой через перекрытия, чердак и кровлю, то есть, прокладывать дымоотводный канал внутри дома.
Варианты установки обычных и коаксиальных дымовых каналов
Примечание. Оба варианта подходят для монтажа коаксиальных газоходов, но в большинстве случаев реализуется первый с проходом сквозь наружную стену.
Прокладка по кратчайшему пути на улицу и подъем трубы по стене – наиболее простой и дешевый способ. Придется пересечь лишь одну конструкцию, а во втором варианте – минимум две. Плюс герметизация узла примыкания кровельного покрытия к дымоотводу.
На втором этаже подобную конструкцию придется зашивать
Всячески старайтесь избегать внутридомовой прокладки, поскольку в доме с двумя этажами или мансардной крышей здоровая труба неизбежно пройдет сквозь помещения, отнимая полезную площадь. Прорисуйте схему здания в разрезе и проходящий дымоход, если снаружи его смонтировать нельзя.
Составляем список деталей по схеме
Для монтажа приставного дымохода, подключенного к газовому или твердотопливному котлу, понадобятся такие элементы модульного сэндвича:
- тройник с патрубком 89° для стыковки горизонтального участка с вертикальным;
- тройник с ревизионным люком;
- секция со сборником конденсата;
- участок одностенной трубы и муфта для подключения теплогенератора;
- переход обычная труба — сэндвич;
- прямые секции – количество и длина подбирается по протяженности газохода;
- 2 колена 30° необходимы для обхода кровельного свеса;
- верхний колпак в виде сопла, защищающий утеплитель последней секции от осадков.
Схема с деталировкой для наружного монтажа
Важный момент. Установка грибков и декоративных козырьков на дымоходе газового котла запрещается. В период ударных морозов оголовок обмерзнет и проходное сечение уменьшится, что опасно для жизни жильцов.
Из деталей крепежа понадобятся стеновые хомуты с кронштейнами и опорная площадка, воспринимающая вес смонтированной конструкции. Если планируется устройство газохода внутри здания, дополнительно потребуются готовые узлы прохода через перекрытия, кровельная герметизирующая накладка (иначе – крыза, мастер – флеш) и колена 90° для монтажа дымовой трубы в котельной.
Устанавливаем сэндвич дымоход
Первый этап монтажа приставной конструкции – пробивка отверстия в наружной стене и подготовка к закладке горизонтального участка. В доме, построенном из горючих материалов, проем делается с учетом противопожарного отступа (38 см от края деревянной стены до внутренней трубы сэндвича) и установки фланца узла прохода, как показано на фото.
Примечание. В несгораемых конструкциях из кирпича и пеноблоков устройство противопожарной разделки не требуется. В проем закладывается металлическая гильза и вставляется секция газохода с уплотнением зазора негорючим материалом.
Работы по монтажу модульного сэндвича и подключению к газовому котлу ведутся в такой последовательности:
- Соберите нижнюю часть приставного дымохода, включающую 2 тройника и секцию отвода конденсата. Присоедините горизонтальный участок, уходящий в отверстие.
- Примерьте узел к стене и определите место монтажа опорной площадки. Закрепите ее и установите нижнюю часть, заведя трубу в стену. Соблюдайте вертикаль, контролируя положение узла строительным уровнем.
- Зафиксировав нижнюю часть газохода, смонтируйте вертикальный участок. Прямые секции соединяйте таким образом, чтобы оболочка верхней надевалась на нижнюю, а газоходная труба, наоборот, вставлялась внутрь (сборка «по конденсату»).
- Крепление пристенного дымоходного канала выполняйте с интервалом не более 2.5 м. Кронштейны не должны попадать на стыки секций.
- Проложите горизонтальный участок сэндвича до газового котла и наденьте переходник. Закрепляйте дымоотвод хомутами к строительным конструкциям с максимальным шагом 1.5 м.
- Подключите теплогенератор к дымоходу куском одностенной нержавеющей трубы.
Напоминание. В деревянном доме просвет между торцами стены и пересекающей трубой заделайте базальтовым волокном, а затем установите металлические фланцы с обеих сторон.
Прямые секции просто вставляются друг в друга и фиксируются хомутами, мазать стыки герметиками не нужно. Если необходима подрезка, то укорачивается нижний торец секции, где утеплитель расположен заподлицо с металлическими обкладками. На верхний срез дымоотвода насаживается защитный конус.
Деталировка для внутреннего монтажа
Прокладка канала дымоудаления внутри здания производится аналогично, только проходить сквозь конструкции придется дважды, а то и трижды. Везде соблюдаются одинаковые правила устройства разделок при пересечении горючих перекрытий и стен. В конце нужно тщательно герметизировать кровлю в месте прохода трубы, как это делается на видео:
Заключение
Дымоход – сооружение далеко не простое, отсюда и большое количество нормативных требований. В этом отношении легче монтируется коаксиальная труба, подключаемая к газовому котлу с закрытой камерой сгорания – она не призвана создавать естественную тягу. Одно отличие: горизонтальный двустенный газоход ставится с уклоном от теплогенератора, чтобы конденсат вытекал наружу.
Первоначально правильность монтажа дымового канала проверят специалисты, которые придут подключать котел к газовой магистрали. Если в процессе установки вы допустите серьезные ошибки, трубу заставят переделывать. Мелкие огрехи вылезут при эксплуатации, их тоже придется устранять самостоятельно.
Дымоход для газового котла: нормы и требования к монтажу, сравнительный обзор видов


Принцип работы
Принцип действия любого дымохода основан на простом законе физики – теплый воздух и пары всегда легче и стремятся вверх, а холодный – тяжелее и соответственно оседает внизу.
За счет разницы температур улицы (снаружи трубы) и горячих газов (внутри системы), появляется тяга. Благодаря ей продукты сгорания не рассеиваются по комнате, а выходят в атмосферу.
Требования к дымоходам для газовых котлов
Проектирование, сборка, монтаж и другие мероприятия, направленные на устройство дымового канала, регламентируются нормативными документами, в которых чётко и ясно прописаны основные требования к этим конструкциям.
К нормативным документам, регулирующим устройство дымоходов для газовых котлов, относится СНиП 2.04.05–91 «Отопление, вентиляция и кондиционирование», а также ДБН В.2.5–20–2001 «Внутренне устройство газоснабжения».
Для напольных и настенных газовых котлов чаще всего монтируют стальной дымоход
На основе этих документов к дымоотводящим конструкциям, которые будут использоваться совместно с отопительными котлами, предъявляются следующие требования:
- сечение дымовой трубы — не может быть меньше, чем выходной патрубок газового котла. Например, если патрубок имеет сечение Ø150 мм, то минимальный диаметр дымовой трубы также должен быть не менее 150 мм. На всей протяжённости дымохода труба не должна иметь зауженных участков и искривлений;
- расположение дымового канала — дымовая труба должна идти строго вверх. При необходимости возможен уклон в 30о. При этом длина отводов может быть не более 100 см, а их максимальное количество — не более 3. Если требуется поворот трубы, то радиус закругления должен быть больше или равен диаметру используемой трубы;
- высота дымохода над коньком — не менее 0,5 м в случаях, когда труба располагается на расстоянии до 1,5 м от конька кровли. Если это расстояние составляет от 1,5 до 3 м, то допускается устройство трубы вровень с уровнем конька. В остальных случаях проводится условная линия от уровня конька под углом в 10о. Оголовок трубы должна «касаться» этой линии. Расстояние от свеса кровли до дымовой трубы — не менее 1,5 м;
Надкровельная часть дымохода должна иметь определённую высоту в зависимости от расстояния до конька - материалы — для изготовления дымохода используются только негорючие газонепроницаемые материалы. При наращивании конструкции верхняя часть трубы должна надеваться на нижнее звено. При этом место контакта необходимо обрабатывать негорючим герметиком;
- устройство — минимальное расстояние от дымовой трубы до объектов и поверхностей, выполненных из воспламеняющихся материалов, должно составлять не менее 25 см. В остальных случаях — не менее 5 см. При проходе дымохода через перекрытия и кровлю не должно быть прямого контакта дымовой трубы с этими конструкциями. Внизу дымохода обязательно монтируется модуль ревизии с капельником.
Приведённые выше требования являются общими и должны выполняться во всех случаях без исключения. Выполняя монтаж дымохода, следует помнить, что даже небольшие отклонения от значений, предъявляемых нормативными документами, могут вызвать снижение срока службы дымовой трубы, а в некоторых случаях привести и к более серьёзным последствиям.
Виды и конструкции
Существует несколько разновидностей дымоходов для газовых котлов:
- Кирпичный (как в виде самостоятельной системы, так и с внутренней вкладкой из нержавеющей или оцинкованной трубы);
- Одинарный металлический (выполненный из оцинкованного либо нержавеющего листа);
- Выполненный из сэндвич-элементов (каналов из двух металлических труб, вставленных одна в другую, с проложенным между ними утеплителем);
- Коаксиальный (труба меньшего диаметра вставлена в трубу большего, без прокладки утеплителя);
- Керамический (выполнен из специальных керамических блоков);
- Асбестоцементный.
Все конструкции схематично представлены на рисунках в разделе «Чертежи и схемы».
Устанавливать дымоход можно как внутри, так и снаружи помещения.
Рис. 1. Конструкция приставных и внутренних дымоходов.
Какой лучше выбрать?
При выборе дымоотводящего канала необходимо ориентироваться на оптимальное сочетание бюджета, мощности газового котла, вида камеры сгорания топлива и общих конструктивных особенностей здания.
Устройство внешнего дымохода экономит внутреннее пространство и более безопасно для жильцов дома, но такие системы подвержены воздействиям окружающей среды, поэтому их срок службы меньше.
Разновидности дымоходов в зависимости от вида камеры сгорания газа:
- Котлы с открытой камерой
Напольные газовые котлы часто выполняются с открытой топкой. Для таких устройств необходим дымоход обеспечивающий стабильно хорошую тягу. Подойдет кирпичный, керамический, дымоход из одинарных и сэндвич труб. Но следует помнить, что кирпичный дымоход гигроскопичен и сложен в монтаже, керамический – очень тяжелый.
- Котлы с закрытой камерой сгорания
В данном случае большинство мастеров рекомендует установку коаксиального дымохода, либо системы из сэндвич-труб, тройников и фитингов.
Сделать самому или заказать
Заказать дымоход у профессионалов либо сделать самому – решать вам.
Правильная самостоятельная установка дымоотводящей системы однозначно сэкономит семейный бюджет. При устройстве обязательно выполнять все требования СНиП и пожарных нормативов.
Несмотря на то, что температура выходящих газов невысока, вред от них не меньше, чем от любых других выбросов. Поэтому на герметичность стыков следует обратить особое внимание.
Так же обязательна организация системы сбора конденсата.
Строительные нормативы
Все дымоходы должны соответствовать СНиП 2.04.05-91, ДНП В 2.5-20-2001, СНиП 42-01-2002 , а так же СП 7.13130. Ни в коем случае нельзя использовать изделия, не прошедшие сертификацию.
Основные требования пожаробезопасности к дымоходам:
- Сечение дымохода должно подбираться согласно мощности котла;
- Не допускаются отклонения трубы от вертикали более, чем на 30градусов;
- Толщина стенок дымоходного канала –не менее 6см для жаростойкого бетона, не менее 12см для кирпича и не нормируется для сэндвича и асбестоцемента;
- Длина ответвления (горизонтального участка) дымохода не должна превышать 1м:
- Минимальное расстояние между трубой и стенами из горючих материалов -250мм, из негорючих -50мм. В местах прохождения трубы через стены и перегородки необходимо установить качественную теплоизоляцию;
- Диаметр дымоходного канала выбирается равным или больше выходного отверстия котла;
- Воздух в системе должен двигаться со скоростью 15-20м/с;
- Расстояние от горячей поверхности канала до деревянных элементов перекрытий должна быть больше 13см для бетона, кирпича и сэндвича и 25см для трубопровода из керамики или асбестоцемента;
- В основании дымохода необходимо организовать патрубок для удаления конденсата;
Требования к тяге:
- Дымовая труба для газовых котлов не должна быть ниже 3 м в высоту (рекомендовано 5м);
- Высота трубы над крышей:
- плоская кровля — до 500мм;
- вровень с коньком при удалении от него на 1.5-3м;
- на уровне воображаемой линии, проведенной от конька под углом 10 градусов к трубе, при расстоянии между трубой и коньком более 3м;
- Допустимый радиус закругления труб в системе равен диаметру изделия;
- Обязательно обустройство карманов для чистки (ревизий);
- Дымоход не должен иметь заужений и искривлений.
Следует учитывать, что дымоотводящая система не должна содержать более трёх поворотов. В противном случае тяга резко снижается.
О последствиях плохой тяги вы уже знаете.
Где разместить дымоход
То, как будет проходить процесс устройства дымохода для газового котла, во многом зависит от того, где будет располагаться этот механизм. Поэтому к моменту выбора места для него следует подойти с особой тщательностью.
Дымоход для жилой постройки можно расположить в нескольких местах:
Снаружи дома.
Особенности такого монтажа будут следующими:
- оснащать теплоизоляцией требуется всю длину трубы;
- конструкция всегда доступна к демонтажу и любым ремонтным работам;
- отсутствие необходимости подбора разнотипных частей для всей конструкции;
- высокий показатель безопасности.
Внутри жилой постройки.
Такой монтаж отличается следующими моментами:
- утеплять нужно лишь ту часть дымовой трубы, которая находится за пределами помещения, то есть на улице;
- более сложный процесс установки и ремонта;
- потенциальный риск попадания в дом вредных веществ, образуемых в процессе сгорания топлива;
- необходимость приобретения разных по типу деталей для монтажа трубы.
Из какого материала
Дымоход для газового котла в частном доме можно сделать из разных материалов. Основное требование — стойкость к химически агрессивным веществам, неспособность пропускать газы. Традиционно используют несколько материалов. О достоинствах и недостатках,особенностях сборки каждого из них поговорим подробнее.
Кирпичный дымоход
Сегодня это уже не самый популярный тип дымоходов. Он получается тяжелым, при большой высоте требует наличия фундамента. Кроме того кладка кирпичного дымохода занимает немало времени.
Вместе с тем, этот вид дымовых труб обладает рядом отрицательных качеств. Первое — внутренние стенки его негладкие, что способствует скоплению сажи, ухудшает тягу. Второе — кирпич — гигроскопичен. Потому стекающий по стенкам конденсат впитывается, что способствует быстрому разрушению.
Устройство кирпичного дымохода для газового котла с вставкой металлической гильзы
Чтобы решить эти проблемы внутрь кирпичного дымохода вставляют гладкую трубу подходящего диаметра. Обычно это труба из нержавеющей стали или асбеста. При строительстве такого комбинированного дымохода необходимо уделить внимание следующим вещам:
- Стыки трубы-вкладыша надо делать герметичным. Если это обычные или сендвич-трубы из нержавеющей стали, все происходит стандартно — дымоход собираем по конденсату. Если вкладыш сделан из асбестоцементных труб, придется позаботиться о герметичности стыков. Причем замазать стык цементом — не вариант. Такое соединение никак не является герметичным — конденсат будет впитываться. Придется придумывать герметичные хомуты, использовать гидрофобные (водоотталкивающие) составы. Причем они должны быть еще и химически стойкими. Как вариант, можно рассмотреть промазывание стыков жаростойкими герметиками с температурой эксплуатации порядка 200°C.
- Для того чтобы конденсат образовывался как можно меньше, трубы (даже внутри кирпичного кожуха) лучше утеплить. Для этого желательно использовать утеплитель, который не боится намокания.
- Внизу к трубе-вкладышу обязательно должен быть пристроен конденсаотосборник. Доступ к нему должен быть свободным.
Если сделать дымоход для газового котла по этим правилам, то даже при обильном выделении конденсата с ним легко будет справиться.
Нержавеющая сталь — одностенные трубы и сендвич
Современные газовые котлы устроены так, что температура дымовых газов на выходе не очень высокая. Потому конденсат образуется всегда. При хорошей тяге большая его часть улетает в трубу, при хорошем утеплении оставшаяся часть испаряется. Так и получается, что в конденсатосборнике жидкость присутствует не всегда. Но сам конденсат образуется при работе газового котла все время. Когда-то в большем количестве, когда-то в меньшем. В связи с этим, требования к нержавеющей стали для дымохода высокие: она должна выдерживать длительный контакт с едкими веществами. Этим требованиям отвечает в основном пищевая нержавейка. Да, она стоит немало, но только она будет служить годами.
Строение сендвич-трубы
Теперь о том, делать дымоход для газового котла из одностенной трубы или из сендвич-труб. Для того, чтобы конденсат образовывался в минимальных количествах, желательно чтобы дымоход не остывал. То есть, его надо утеплять. И хоть сендвич-дымоход имеет прокладку из утеплителя, при наружной прокладке (на улице) его тоже лучше утеплить — дольше прослужит, лучше будет тяга. Но в данном варианте потребуется меньше утеплителя — один слой, тогда как обычную трубу, возможно, придется оборачивать двумя или даже тремя слоями. Так что затраты на обустройство дымохода из одно-стенной нержавеющей трубы и сэндвичей будут сопоставимы. Просто в первом случае придется использовать большее количество утеплителя, во-втором меньшее.
Если говорить о надежности, то сендвич-дымоходы более надежны, хотя бы из-за того, что состоят из двух слоев металла. Кстати, если будете дымоход утеплять, наружные трубы могут быть из оцинкованной стали — с конденсатом они не контактируют, температуры невысокие, а внешний вид неважен, так как все будет обматываться утеплителем.
Керамические дымоходы
Керамические дымоходы хороши всем: они долговечны, надежны, хорошо переносят контакт с агрессивными веществами. Но имеют два существенны недостатка. Первый — они стоят дорого. Второй — имеют большой вес, так что при устройстве высокого дымохода требуют наличия фундамента. А это — дополнительные расходы к итак немалой сумме. Зато срок эксплуатации такого дымохода исчисляется десятилетиями.
Керамический дымоход
Асбоцементные трубы
Некогда это был самый популярный вид материала при строительстве дымоходов для газового котла в частном доме. Материал, конечно, пористый, имеет шероховатые стенки, да и сечение у него неидеальное (не круглое, а скорее, овальное). Но это, пожалуй, самый дешевый вариант.
Чтобы избежать появления подобных пятен надо соединения сделать абсолютно герметичными
При использовании асбоцементных труб для дымохода газового котла необходимо:
- Делать его максимально прямым, стараясь стыки делать ровными.
- Стыки герметизировать. Как уже говорили, просто замазать цементном — не вариант. Необходимо герметичное соединение. Несколько решений проблемы — использование гидрофобных присадок в раствор, обмазка высохшего цементного раствора герметиком, использование герметичных хомутов.
- Для уменьшения количества конденсата трубу делать высокой, хорошо утеплять.
В общем, ничего нового, все те же правила, что и для описанных выше материалов, но добавляется морока со стыками. Так что в результате по цене дымоход из асбестовых труб получается практически таким же, как и из нержавеющей стали.
Устанавливаем сэндвич дымоход
Первый этап монтажа приставной конструкции – пробивка отверстия в наружной стене и подготовка к закладке горизонтального участка. В доме, построенном из горючих материалов, проем делается с учетом противопожарного отступа (38 см от края деревянной стены до внутренней трубы сэндвича) и установки фланца узла прохода, как показано на фото.
Примечание. В несгораемых конструкциях из кирпича и пеноблоков устройство противопожарной разделки не требуется. В проем закладывается металлическая гильза и вставляется секция газохода с уплотнением зазора негорючим материалом.
Работы по монтажу модульного сэндвича и подключению к газовому котлу ведутся в такой последовательности:
- Соберите нижнюю часть приставного дымохода, включающую 2 тройника и секцию отвода конденсата. Присоедините горизонтальный участок, уходящий в отверстие.
- Примерьте узел к стене и определите место монтажа опорной площадки. Закрепите ее и установите нижнюю часть, заведя трубу в стену. Соблюдайте вертикаль, контролируя положение узла строительным уровнем.
- Зафиксировав нижнюю часть газохода, смонтируйте вертикальный участок. Прямые секции соединяйте таким образом, чтобы оболочка верхней надевалась на нижнюю, а газоходная труба, наоборот, вставлялась внутрь (сборка «по конденсату»).
- Крепление пристенного дымоходного канала выполняйте с интервалом не более 2.5 м. Кронштейны не должны попадать на стыки секций.
- Проложите горизонтальный участок сэндвича до газового котла и наденьте переходник. Закрепляйте дымоотвод хомутами к строительным конструкциям с максимальным шагом 1.5 м.
- Подключите теплогенератор к дымоходу куском одностенной нержавеющей трубы.
Watch this video on YouTube
Напоминание. В деревянном доме просвет между торцами стены и пересекающей трубой заделайте базальтовым волокном, а затем установите металлические фланцы с обеих сторон.
Прямые секции просто вставляются друг в друга и фиксируются хомутами, мазать стыки герметиками не нужно. Если необходима подрезка, то укорачивается нижний торец секции, где утеплитель расположен заподлицо с металлическими обкладками. На верхний срез дымоотвода насаживается защитный конус.
Деталировка для внутреннего монтажа
Прокладка канала дымоудаления внутри здания производится аналогично, только проходить сквозь конструкции придется дважды, а то и трижды. Везде соблюдаются одинаковые правила устройства разделок при пересечении горючих перекрытий и стен. В конце нужно тщательно герметизировать кровлю в месте прохода трубы, как это делается на видео:
Watch this video on YouTube
Дымоход из оцинкованной трубы
Устройство дымохода
Конструкция типа «сэндвич» из труб по праву считается одним из самых эффективных и удачных вариантов дымоотводящих приспособлений.
На сегодняшний день производители предлагают огромный ассортимент таких дымоходов. Среди их преимуществ нужно, прежде всего, отметить устойчивость к агрессивным внешним воздействиям и различным механическим нагрузкам.
Непосредственно «сэндвич» имеет предельно простое строение. Он состоит из двух труб отличающегося диаметра, одна из которых вставлена в другую. Для заполнения зазора между такими трубами чаще всего применяется негорючая базальтовая вата.
Сэндвич труба для дымохода
Коаксиальный дымоход для газового котла
Коаксиальный дымоходКотел газовый настенный
Современный вариант с отличными эксплуатационными характеристиками и презентабельным дизайном. Изготавливается по схеме «труба в трубе». Предназначен для использования с газовыми котлами, камера сгорания которых выполнена по закрытому типу. В подобного рода оборудовании забор воздуха для горения газа забирается с улицы, а не из отапливаемой комнаты.
Принцип работы коаксиального дымохода
Подача воздуха осуществляется посредством внешней трубы, проложенной через наружную стену строения. Дым с примесями выводится сквозь внутреннюю трубу. Подобное устройство выгодно и тем, что оно исключает необходимость монтажа дополнительной вентиляционной системы.
Вид установленного коаксиального дымохода
Помимо этого, специфическая форма коаксиального дымохода исключает возможность образования конденсата на его стенках, что имеет особенно важное значение в отопительных системах, функционирующих на газовом топливе.
Цены на популярные модели газовых котлов
Газовый котел
Как уменьшить температуру дымовых газов в дымоходе
При сгорании природного газа образуется углекислый газ, пар, сернистые солеобразующие оксиды т. д. Оптимальная температура дымовых газов на выходе из дымохода должна составлять 100–110 оС.
Если температура уходящих газов будет ниже точки росы, то есть температуры конденсации воздуха, то водяные пары, содержащиеся в продуктах горения, будут оседать на стенках дымовой трубы. Если это будет происходить постоянно, то дымоход может быстро разрушиться.
При слишком низкой температуре топочных газов на выходе из дымохода будет образовываться конденсат, а внешняя часть трубы начнёт обмерзать
К тому же наличие постоянного конденсата в дымовом канале приводит к ослаблению естественной тяги. Поэтому так важно следить за температурой уходящих газов, которая напрямую зависит от сечения дымовой трубы.
Из сказанного можно сделать вывод, что при правильном расчёте температура дымовых газов будет находиться в районе оптимальных значений. Если же температура завышена и её требуется уменьшить, это напрямую свидетельствует о том, что сечение дымовой трубы не соответствует мощности газового котла. Для уменьшения температуры выходящих газов рекомендуется пересобрать дымоотводящую систему с учётом нормативных значений.
Как проверить и отрегулировать тягу в дымоходе газового котла
Тяга — это снижения давления в месте, где происходит сжигания топлива. Снижение давления происходит за счёт удаления продуктов сгорания через дымовой канал. Если говорить в рамках этой статьи, то тяга заставляет свежий воздух поступать в камеру сгорания, где наблюдается пониженное давление, возникающее из-за того, что продукты сгорания газа выводятся наружу.
Наличие тяги свидетельствует о том, что дымоход спроектирован и установлен правильно, а оборудования работает исправно. Отсутствие тяги может являться прямым или косвенным подтверждением необходимости профилактических работ или ремонта оборудования и дымооводящей системы.
Скорость воздушного потока в дымоходе можно измерить специальным прибором — анемометром
Для проверки уровня тяги используются следующие способы:
- визуальный осмотр — в помещении, где расположено отопительное оборудование, не должно наблюдаться задымления;
- использование подручных средств, например, листа бумаги. Его подносят к смотровому отверстию. Если тяга есть, то лист будет отклоняться в сторону отверстия;
- измерение специальным прибором — анемометром. Он используется для контроля скорости воздуха.
Для контроля тяги лучше использовать последний способ, так как только он покажет точное значение. При измерении естественной тяги скорость дымовых газов должна быть в диапазоне 6–10 м/с. Значение взято из СП 41–104–2000 «Проектирование автономных источников теплоснабжения».
Если требуется уменьшить уровень тяги, то для этого потребуется пересобрать дымоход на основе дымовой трубы большего сечения. Для увеличения тяги рекомендуется проверить качество монтажных стыков и провести механическую чистку дымового канала при помощи стального троса с насадкой-ёршиком.
Если это не помогло, то единственный выход — это замена дымохода с предварительным просчётом сечения дымовой трубы. При этом количество поворотных элементов желательно свести к минимуму или вообще их убрать.
Почему задувает котёл и как это устранить
Основная причина, по которой происходит задувание горелки в котле, — это эффект обратной тяги, возникающий из-за проблем с дымоходом.
Прежде чем приступать к каким-либо мероприятиям, следует проверить высоту дымовой трубы над уровнем конька и наличие установленного дефлектора, который позволяет снизить проникновение потоков ветра в дымовой канал. Если устройство трубы выполнено не по правилам, то после описанных ниже действий, потребуется нарастить трубу и поставить дефлектор.
Иногда для того чтобы увеличить тягу, нужно очистить дымоход от сажи
Для того чтобы решить проблему с задуванием котла, потребуется выполнить следующее:
- В первую очередь необходимо проверить уровень тяги в трубе. Для лучше использовать анемометр. Если его найти не удалось, то при работающем котле нужно прислонить бумагу к выходному отверстию дымохода. Если лист притягивается к дымоходу, то проблем с тягой быть не должно.
- Если удалось обнаружить, что задувание происходит из-за потери естественной тяги, то потребуется проверить места соединения дымовой трубы. Для этого используется тепловизор. Если труба пропускает воздух, то прибор покажет сильную разницу температур между основной трубой и стыком двух модулей.
- Если дымоход собран правильно, то необходимо выполнить прочистку дымового канала при помощи троса с насадкой. Диаметр насадки подбирается под сечение трубы дымохода. Для уборки сажи, смол и других продуктов горения используется ревизионное отверстие внизу дымохода.
- После выполнения этих простых действий потребуется снова проверить уровень тяги. Если естественная тяга не улучшилась, то необходимо провести работы по исправлению высоты дымовой трубы и установить дефлектор. При установке используется термостойкий герметик и обжимные хомуты.
В случаях, когда проведение описанных выше работ не дало результата, следует обратиться в газовую службу с целью проверки газового оборудования. Возможно, проблемы с задувание связаны со сверхчувствительной автоматикой.
Заключение
Дымоход – сооружение далеко не простое, отсюда и большое количество нормативных требований. В этом отношении легче монтируется коаксиальная труба, подключаемая к газовому котлу с закрытой камерой сгорания – она не призвана создавать естественную тягу. Одно отличие: горизонтальный двустенный газоход ставится с уклоном от теплогенератора, чтобы конденсат вытекал наружу.
Первоначально правильность монтажа дымового канала проверят специалисты, которые придут подключать котел к газовой магистрали. Если в процессе установки вы допустите серьезные ошибки, трубу заставят переделывать. Мелкие огрехи вылезут при эксплуатации, их тоже придется устранять самостоятельно.
Требования к дымоходу для газового котла в частном доме


Все котлы при сжигании топлива, выделяют токсичные дымовые газы, которые нужно отводить в атмосферу. Для этого в доме обустраивается дымоход для газового котла.
Конструкция дымохода выполняется из взаимосвязанных элементов и отводной трубы, ее можно сделать своими силами, при этом потребуется выполнить все рекомендации завода-изготовителя котла.
Виды дымоходов для индивидуального дома
Температура топочных газов, отводимых из топки котлоагрегата через дымоотвод, зависят от вида сжигаемого топлива, например, для газа она находится в пределах 150 -200 С.
Кроме отвода горячих отравляющих веществ, дымоходы для газовых агрегатов должны обеспечить скорость движения газов, чтобы минимизировать скопление сажи на внутренних поверхностях нагрева котлоагрегата и дымоотводящих каналов.
Наиболее популярные системы дымоотвода, которые устанавливают в коттеджах:
- Нержавеющие конструкции. Они признаются наилучшим вариантом, по той причине, что невосприимчивы к коррозионному воздействию агрессивных газов, обладают сравнительно незначительным весом и организуют хорошую тягу. Период использования газохода из нержавеющей стали составляет более 15 лет. Подобную систему допускается монтировать собственными силами, поскольку она собирается из взаимосвязанных модулей, которые продаются в торговой сети.
- Система из оцинкованной стали менее надежная, чем нержавеющие конструкции, особенно в конструкциях, в которых часто образуется конденсат. Вода, соединяясь с азотом и серой в уходящих газах, образует серную и азотную кислоту, способную в течение пяти лет вывести такой дымоход из строя.
- Керамические дымоходы могут эксплуатироваться свыше 30 лет. Материал имеет высокие показания кислотной и термостойкости, особенно пользуются популярностью конструкции с внешним стальным контуром.
- Коаксиальный дымоотвод относится к современной системе, обладает высокоэффективными аэродинамическими характеристиками, в связи, с чем создает хорошее разряжение в топке. Строение данного газохода выполнено в виде двух труб, одна расположена в другой. По внутренней, отводятся дымовые газы, а воздух поступает по внешней. Положительным при этом является система подогрева воздуха, поскольку он продвигается вдоль горячей внутренней трубы и поступает в топку уже горячим, тем самым снижая удельные расходы топлива на выработку единицы тепловой энергии. Система предварительного подогрева повышает КПД котла до 5-6 %. Такая конструкция допускает выполнять ремонт дымоходов для газовых котлов своими силами.
- Кирпичный дымоход — это традиционный вариант обустройства дымовых каналов. Когда-то их применение было массовым, а сегодня они уже не соответствуют современных энергоэффективным требованиям в бытовой теплоэнергетике. Массивность конструкции дымохода из кирпича для газового котла и большее внутреннее сопротивление снижают тягодутьевой напор в котле, особенно при максимальной нагрузке. Чистить кирпичный дымоход требуется довольно часто, на его внутренних поверхностях скапливается конденсат, в связи, с чем кислотная среда разрушает кирпичные конструкции.
- Асбоцементные трубы — недолговечная система, ее применяют в качестве временного газохода. При сравнительно недорогой цене, монтаж дымохода газового котла выполнить довольно сложно, так как требуется строго вертикальная установка дымохода для газового котла, что сложно выполнить из-за тяжеловесной конструкции.
Требования государственных нормативов
При проектировании учитывают размер дымохода для газового котла, геометрию, уклоны и иные характеристики. При монтаже котельного дымоотвода выполняют государственные требования нормативных материалов СНиП, санитарной безопасности и инструкцией завода-изготовителя котла. Сечение дымохода для газового котла обязано согласовываться с выходным котловым патрубком.
Основные требования к дымоходам для газовых котлов:
- Установка конденсатоотводчиков, для сбора конденсата на трубе газового котла. Устанавливаются внизу трубы из химстойкого пластика либо из нержавейки.
- Выполнение необходимых уклонов, снижение поворотов.
- Наилучшим для напольного устройства является вертикальное расположение, не имеющей отводов. Практически достигнуть подобного расположения получается не всегда. Отклонение от вертикального направления разрешается не больше 30 градусов.
- Газоплотное соединение, чтобы угарный газ не смог проникать в жилые комнаты.
- Труба дымохода для газового котла должна подниматься над коньком стрехи свыше 0.50 м, а расстояние от кромки парапета до газоотвода, не выше 150 см.
- Когда не существует способа вывода конструкции сквозь потолочное перекрытие и крышу здания, применяют коаксиальные газоходы. С выводом уходящих газов сквозь стенку.
- На этапе монтажа системы потребуется учесть требования противопожарной защиты, в местах прохождения системы через строительные конструкции, они обязаны быть теплоизолированы.
- Устанавливают дефлектор на дымоход газового котла.
- Газовые котлы без дымохода в эксплуатацию не допускаются.
Заказать или изготовить собственными силами
Собственник котла сам должен принять решение о том, чтобы заказать систему профессионалам либо сделать ее самому. Конечно же, самостоятельный монтаж сэкономит домашний бюджет, тем более, что конструкция очень проста и под силу домашнему мастеру, имеющему навыки работы с металлом и слесарными инструментами и способного работать на высоте.
В противном случае лучше обратиться к специализированной организации и воспользоваться услугами профессионалов. Тем более, что данная работа будет проверяться органами пожарного надзора с оформлением акта допуска в эксплуатацию, без чего котел просто не будет подключен к газовой магистрали.
Какой лучше газоход выбрать при покупке
Газовые котлы оснащаются одной из 2-х типов топочных камер: открытой либо закрытой. Снаружи нагревательные установки практически ничем не отличаются, но принцип функционирования у них отличается. Осуществляют выбор дымохода в зависимости от разновидности используемой топки.
Разработчики котлоагрегатов в заводской документации, как правило, обозначают наименьшие габариты газохода для котельного оборудования и прочие параметры к дымоотводному комплексу.
До того, как подобрать дымоотвод — приобретают котлоагрегат. Помимо характеристик дымовых газов на выходе из котла, подбор газохода определяется конструктивными характеристиками здания.
К примеру, при монтаже источника теплоснабжения на мансарде, для отвода продуктов сгорания рационально подобрать стальной дымопровод, обладающий небольшим весом и не требующий выполнения укрепления перекрытий.
Правильно выбирать котлоагрегат и дымоотводящую трубу до начала возведения жилья, чтобы предварительно выполнить требуемые для их инсталляции изменения в конструкционных элементах строения.
Подбор оборудования и безошибочный расчет дымохода для газового котла лучше поручить специалисту, а если котел будет работать на газовом топливе, то потребуется выполнение проекта установки котлоагрегата с дымоотводом, иначе горгаз не выдаст разрешение на подачу газа к такому источнику отопления.
Из какого стройматериала надежнее выполнить самому
Правильный выбор материала дымохода, будет зависеть от того какое топливо планируется использовать: магистральный или сжиженный газ, печное топливо, уголь, древесные материалы или пеллеты. Абсолютно все они отличаются температурой сгорания, объемом и составом уходящих газов.
В связи с этим при выборе стройматериала для газоходов принимают во внимание следующие характеристики:
- Для твердотопливных котлоагрегатов и каминов нужно подбирать материал, который способен выдержать номинальную температуру приблизительно 700 С, с возможностью краткосрочного повышения до 1000 С — допускается кирпичные и реже керамические дымопроводы.
- Для газового топлива требуется газоход, способен выдержать температуру в 220 С с временным подъемом до 400 С — допускается использовать дымоходы из нержавеющей стали.
- Для жидкотопливных котлов необходима дымоходная труба, способной выдержать температуру до 250 С и временным повышением до 400 С, а кроме того устойчивой к агрессивной среде уходящих газов — допускается использовать нержавеющие трубы.
Изготовление и монтаж газохода своими руками
Правила монтажа котельной обязывают исполнителей начинать ее с установки дымоходов и вытяжной вентиляции. Размещение и обвязка газового котла с инженерными системами выполняется во вторую очередь. При этом полипропиленовыми трубами котлы не подключаются.
Вначале определяют диаметр дымохода для газового котла и способ прокладки. Первый параметр обычно обозначен в паспорте котла и в проектной документации на монтаж котельной установки.
Что касается способа прокладки она будет зависеть от конструктивных характеристик дома, помещения топочной, но в случае установки котла с закрытой топкой рекомендуется устанавливать наиболее инновационную систему дымоотвода — сэндвич дымоход тождественного либо большего сечения, чем у котлового патрубка.
Далее по имеющейся схеме установки газоотвода составляют список деталей для монтажа:
- тройник с патрубковым выходом 89 градусов, для соединения горизонтального элемента с вертикальным;
- тройник, с установленным люком;
- блок с конденсатоотводчиком, для сбора конденсата в дымоходе газового котла;
- участок с соединительной муфтой для подключения к выходному патрубку котла;
- гибкий дымоход переходная секция — сэндвич;
- прямые секции — с числом и длиной по схеме дымохода;
- 2 колена с углом отвода 30 градусов требуются для обхода кровли;
- верхний защитный колпак конструкции от воздействия атмосферных осадков;
- стеновые хомуты с кронштейнами;
- конденсатосборник для дымохода;
- опорная платформа, для дымохода газового котла;
- утеплитель или теплоизоляция.
Для внутреннего расположения дымоотводной системы потребуется переходники через конструкционные элементы здания и утеплитель конструкции в точках соприкосновения.
Расчет размеров
Выбор газохода необходимо выполнять только после приобретения котлоагрегата, в противном случае очень сложно подобрать нужные параметры: протяженность, угол поворота, месторасположение конденсатоотводчиков. Отдельные модули дымоотводной системы, возможно, купить в торговой сети.
Для профессионального монтажа газохода желательно сначала выполнить расчет сечения входного отверстия по формуле:
F = (К х N) / (4,2 х √ Н),
где:
- К — расчетный коэффициент дымоотводной системы агрегата, принимается 0.03;
- N — мощность котлоагрегата, обозначенная в технической документации на отопительный котел;
- Н — минимальная высота газохода, установленная расчетным путем заводом изготовителем для конкретной марки котлоагрегата.
После получения площади сечения ее сравнивают с данными устройств имеющимися в торговой сети и при необходимости выбирают ближайший больший вариант. При применении асбестовой трубы, сечение дымоотводящего канала принимается не меньшим 100 мм.
Установка газоходов
Порядок монтажа дымохода для газового котла можно рассмотреть на примере возведения сэндвич-системы:
- Подсоединяют к выходному дымоотводному патрубку котлоагрегата проходной элемент, спроектированный для прохода сквозь стенку.
- На поверхности стенки выполняют разметку согласно данным проходного компонента и делают проем в стене.
- Выводят дымоотвод из комнаты.
- Выполняют утепление дымохода от газового котла.
- Прикрепляют к дымоходу тройник.
- Выполняют наращивание дымохода, присоединяют новые элементы до расчетной длины.
- Устанавливают защитный оголовок от осадков.
- Для закрепления конструкции к стене применяют кронштейны с шагом 2.0 м.
- Закрепляют все стыковые соединения хомутами.
Частые ошибки во время установки
Наиболее частыми ошибками считаются:
- Неквалифицированно установлена высота и сечение дымовой трубы.
- Низкий уровень теплоизоляции при установке наружного газохода либо в переходном проеме на чердаке.
- Нарушение норм пожаробезопасности при возведении газоходов.
- Трубный участок от котла заведен в кирпичный газоход без гильзования, что ведёт к повреждению такого отверстия.
- Монтаж железных газоходов исполнен из металла, не надлежащего качества и низкой толщиной стенок, неспособного сопротивляться агрессивной среде и очень высокому температурному режиму.
- Конструкция не имеет специальной модели с оголовком против обледенения.
Проверка тяги в дымоходе после монтажа
Корректная и эффективная работа котла может протекать только при наличии хорошей тяги, которая создается профессионально выполненным газоходом.
Почти все современные модификации котлов оснащаются автоматической системой защиты, отключающей котел при низкой тяге в топке.
Перед розжигом котла пользователь должен самостоятельно проверять наличие тяги, то можно выполнить следующими вариантами:
- С применением анемометра — специальный измерительный прибор для измерения тяги в топке котла. Достаточный уровень тяги для безопасной работы котлоагрегата — от 2 до 30 Па.
- С использованием спички или открытого пламени свечи. Ее подносят в окошко топочной камеры, пламя от свечи должно втягиваться в топку.
- Кроме того в процессе обслуживания котла потребуется проводить проверку работоспособности датчика тяги. Для этого помещают рядом с датчиком небольшое зеркало. При нормально работающем устройстве поверхность зеркала не должна запотевать при включенном котле или колонке.
Обслуживание и чистка
Безопасная работа котлов, прежде всего, зависит от исправной работы дымоотводной системы котла отопления. В процессе работы дымовые каналы забиваются сажей, которая может самовоспламеняться, горение ее происходит при температуре 1000 С, что способно разрушить любую дымоотводящую систему, перебросив огонь на крышу и другие важные конструктивные элементы в доме. Для того чтобы этого не произошло, выполняют периодическую очистку дымовых каналов и газоходов котла.
Своевременная очистка газохода важна по ряду факторам. Прежде всего, от этого будет зависеть эффективность системы дымоудаления, для обеспечения полного горения и удаление уходящих газов.
Во-вторых, чистый дымоход для газового котла в частном доме это обеспечение собственной безопасности и сохранения имущества от пожара.
Нормы, которые регламентируют периодичность проверок дымохода зависят от использованного топлива. При использовании твердотопливных котлов на угольном топливе с мощностью менее 50 кВт, очистка выполняется не менее 4 раз/год, а свыше 50 кВт — 6 раза/год.
Таким образом, подводя итог, можно обозначить, то система дымоотведения любого котла, является важным элементом безопасности жилого дома.
Для того чтобы обеспечить безаварийную работу котла и пожарную безопасность в доме, перед тем как правильно сделать систему, она должна тщательно рассчитываться и устанавливаться согласно требованиям СНИП и проекту установки газового котла.
Монтаж дымохода для газового котла в частном доме


Грамотный монтаж дымохода для газового котла – залог эффективной работы отопительной системы. Ошибки в установке могут стать причиной слабой тяги, роста расходов, неполного вывода продуктов горения. Повторный монтаж дымохода связан с дополнительными денежными затратами, поэтому намного выгоднее обратиться к специалистам нашей сервисной компании «Комплекс идей». Профессиональное проведение работ по установке сократит расходы на обслуживание котла и повысит его производительность.
Требования к дымоходам для газовых котлов
Наши мастера работают в соответствии с требованиями к дымовым каналам, прописанными в нормативных документах. В процессе монтажа дымохода важно соблюдать следующие нормы:
- Соответствие диаметра дымохода сечению выходного патрубка котла.
- Вертикальное расположение конструкции по направлению вверх.
- Отсутствие наклонов, искривлений и сужений.
- Газонепроницаемые материалы.
- Герметизация стыков.
- Монтаж сборника конденсата.
- Достаточная высота дымохода.
- Установка защитного козырька на трубу.
Специалисты нашей компании уделяют максимум внимания обеспечению безопасности дымового канала, что гарантирует полноценное выведение выхлопов газового котла и безвредность его эксплуатации.
Виды дымоходов и особенности их установки
Инженеры «Комплекса идей» выполняют профессиональный монтаж дымоходов различных видов:
- Внутристенных (из кирпича, бетона, облицованных асбестом или нержавеющей сталью).
- Отдельно стоящих или коренных (внутреннего или наружного типов на отдельном основании).
- Коаксиальных (на основе уже имеющейся трубы без создания жёсткого каркаса).
- Насадных (устанавливаемых на газовый котёл).
Выбор типа дымового канала определяется видом камеры сгорания газового котла и множеством других параметров, учесть которые может только профессионал. Специалисты нашей компании подберут оптимальный тип дымохода в зависимости от особенностей вашего нагревательного прибора и проведут его грамотную установку.
Используемые материалы
Стоимость монтажа дымохода для газового котла зависит от его типа, формы и материалов, из которых он будет изготавливаться. Наиболее распространённые варианты создания дымовых каналов:
- Коаксиальные трубы для газовых котлов с турбиной.
- Кирпичные (огнеупорность, долговечность).
- Керамические (устойчивость к температурным колебаниям, образованию конденсата).
- Трубы из нержавеющей стали (лёгкость конструкции, стойкость к коррозии, низким и высоким температурам, простота установки).
- Трубы сэндвич.
- Однослойные.
Выбрать оптимальный способ обустройства помогут наши мастера, основываясь на учёте особенностей помещений, характеристик газового котла и других деталей.
Доверьтесь профессионалам из «Комплекса идей»
Специалисты компании «Комплекс идей» оказывают такие виды услуг, как монтаж кирпичных или стальных дымоходов традиционного типа, разработка проекта и обустройство системы удаления дыма внутри стен, обработка асбестом внутренних стенок дымохода и другие работы. Профессиональная установка дымохода для газового котла обеспечивает качественный вывод продуктов сгорания, стабильное функционирование отопительной системы и безопасность жильцов дома.
Самостоятельное обустройство дымового канала может обернуться непредвиденными сложностями и привести к ошибкам и нарушению правил техники безопасности. Многолетний опыт работы в сфере систем отопления, доскональное знание санитарных норм и правил, высокий профессионализм наших мастеров гарантирует оперативное проектирование и качественную установку дымоходов любых типов.
Для решения своей проблемы вы можете вызвать специалиста. Заполните форму, коротко опишите свою проблему и мы вам перезвоним для консультации.